旗竿地でも陽光の中でくつろげる
眺望抜群のLDK。その秘策は?

建築家の日部(かべ)友裕さんが自邸を建てたのは、周囲を建物に囲まれた21坪の旗竿地。「自分の家だからこそ、あえて狭小×旗竿というハードルの高い土地を選んでみました」。完成した住まいは陽光たっぷり、明るく開放的で眺望も抜群。旗竿地とは思えないのびやかな空間は、いったいどんな工夫で生まれたのだろうか。

この建築家に
相談する・
わせる
(無料です)

明るさも開放感も!空間をタテにつなげる吹抜けの中庭

住宅密集地でよくみられる、道路から細い路地を入ったところに広がる“旗竿地”。道路に面した通常の敷地より安価なケースが多く、都心部では増加傾向にある。だが、いざ家を建てるとなると「周りが建物に囲まれると日当たりが悪そう」「隣家とのプライバシー問題ってどうなの?」といった不安を感じる人も少なくない。

建築家の日部友裕さんが自邸を建てるために選んだ土地は、まさにこの旗竿地。しかも21坪と、これまた好条件とは言い難い“狭小敷地”の部類に入る。しかし、そこは建築・設計のプロ。「自邸だからこそ難しい条件でやってみたい」と、あえてこの土地を選んだという。

今回の家づくりのコンセプトは「ずっといたくなるような家。休日にわざわざお茶しに出かけなくても、家でゆっくり過ごしたくなるような空間」。その言葉通り、完成した自邸は旗竿×狭小のイメージをくつがえす快適で心地よい住まいとなっている。

快適さ、心地よさを得るうえでぜひとも欲しいのは、自然光の明るさとのびやかな開放感。そこで日部さんはまず、光を採り込みやすい2階に主な生活空間となるLDKを配し、敷地の中でかろうじて眺望が開けていた南東に大きな窓を設置。また、片流れ屋根で天井を高めにとり、ロフトやトップライト、ハイサイド窓を設けて採光と開放感を確保した。

すごいのはここからだ。完成した住まいは地下1階、地上2階建て。といってもプロならではの秘策ともいえる工夫があり、1階は玄関から半階上がり、地階は玄関から半階下がるスキップフロア。この造りで2階のLDKは近隣住宅の2階よりも半階分ほど高い位置になり、採光も眺望もいちだんとアップ。さらに、隣家と窓の高さがズレるため、外部の視線が気になりにくいというメリットも。スキップフロアは「面白い!おしゃれ!」などという無邪気な感想を軽く飛び越え、明るく開放的な空間づくりに大きく貢献しているのだ。

そしてもうひとつの秘策が、建物の北東角に設けた『タテノニワ』。これは家の下から上までをブチ抜き、螺旋階段に沿って“タテ”につなげるガラス張りの中庭のこと。日部さんが『タテノニワ』と呼ぶこの吹抜けの中庭は、1階、2階はもちろん、地階にも爽やかな日差しを届ける採光効果が大きな魅力。ほかにも隣家との密接感が軽減されたり、玄関ホールで青空が見える嬉しい意外性があったりと、いいことずくめである。

とはいえ『タテノニワ』にひとつ難点があるとすれば、このスペースによって床面積が少し減ったことだろう。「それでも『タテノニワ』があるのとないのとでは、家の中の居心地のよさがまったく違うと思います」と日部さん。

敷地の広さが十分とはいえない場合、つい、敷地いっぱいに家を建てたくなってしまうのは人情。だが思い切ってこんなスペースをとれば、明るさ、開放感、隣家との距離感といった五感を満足させる“感覚的な広さ”が手に入る。日部さんが目指した“ずっといたくなるような”心地よさは、面積などの数字だけでは計れない。設計のセンスとテクニックでここまでつくり上げることができるのだ。
  • 2階 ダイニング~リビング/家族で憩うのにふさわしい、明るく開放的な空間。床はシルバーチェリー、白壁は珪藻土で高級感のある仕上がりに

    2階 ダイニング~リビング/家族で憩うのにふさわしい、明るく開放的な空間。床はシルバーチェリー、白壁は珪藻土で高級感のある仕上がりに

  • 2階 リビング/写真右、北の天井は高度斜線制限の関係で低くしたが、南の高い天井や東西の窓のおかげで圧迫感はゼロ。むしろ空間に包まれている安心感があり、ゆったりくつろげるリビングになった

    2階 リビング/写真右、北の天井は高度斜線制限の関係で低くしたが、南の高い天井や東西の窓のおかげで圧迫感はゼロ。むしろ空間に包まれている安心感があり、ゆったりくつろげるリビングになった

  • 2階 LDK南東/唯一、眺望が開けていた南東を大きく開口したほか、屋根を片流れにして東の天井を高くとり、ロフトを設置。トップライトやハイサイド窓もふんだんに設けてたっぷり採光。写真左、螺旋階段の横の『タテノニワ』からも光が入り、建物に囲まれた旗竿地とは思えないほど明るい

    2階 LDK南東/唯一、眺望が開けていた南東を大きく開口したほか、屋根を片流れにして東の天井を高くとり、ロフトを設置。トップライトやハイサイド窓もふんだんに設けてたっぷり採光。写真左、螺旋階段の横の『タテノニワ』からも光が入り、建物に囲まれた旗竿地とは思えないほど明るい

  • 螺旋階段・中庭/1階から2階への螺旋階段に沿った北東角に、邸内の“タテの空間”をつなぐ吹抜けの中庭をしつらえた。『タテノニワ』と名づけたこのスペースのおかげで、家の中の広い範囲に自然光の明るさがおよぶ

    螺旋階段・中庭/1階から2階への螺旋階段に沿った北東角に、邸内の“タテの空間”をつなぐ吹抜けの中庭をしつらえた。『タテノニワ』と名づけたこのスペースのおかげで、家の中の広い範囲に自然光の明るさがおよぶ

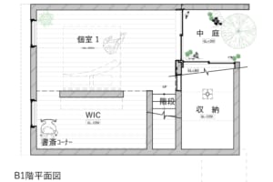
  • 地階 ワークスペース入口/写真中央の階段の先が玄関ホール。地階は、階段で玄関ホールから半階分ほど下がった高さに位置する。写真左の窓から見える『タテノニワ』を通して自然光が入り、穏やかな明るさ。写真右奥は書庫兼ウォークインクロゼットとして使用中だが、広いので寝室や書斎としても使える

    地階 ワークスペース入口/写真中央の階段の先が玄関ホール。地階は、階段で玄関ホールから半階分ほど下がった高さに位置する。写真左の窓から見える『タテノニワ』を通して自然光が入り、穏やかな明るさ。写真右奥は書庫兼ウォークインクロゼットとして使用中だが、広いので寝室や書斎としても使える

長く快適に暮らせる間取りは「役割不定」がキーワード

日部さんは現在、自邸の地階を自身の設計事務所としている。先述の通り地階といっても地上からの低さは半地下程度。『タテノニワ』に面した窓からやさしい光がそそぐ空間は、暗さ、圧迫感とは無縁で落ち着いて仕事ができる。

地階の一角には、実に広々したウォークインクロゼットもある。「今は子どもが生まれて1階の和室で寝ていますが、入居当初はここを寝室にしていました」と日部さん。たしかに、コンクリート打ち放しの洗練された空間は、寝室や書斎などの居室としても十分活躍するだろう。

1階は『タテノニワ』に面したフローリングスペースが造り付けの収納棚で仕切られており、その先には現在親子3人の寝室としている畳の和室がある。しかし地階を寝室とすれば、1階は茶の間、客間として使ってもOK。収納棚を外し、和室から『タテノニワ』を眺めてのんびりくつろぐのもよさそうだ。

日部さんは言う。「LDK以外は各居室の役割を決めないように意識しました。空間の使い方は家族構成の変化や子どもの成長と共に変わっていく。いずれ事務所は別の場所に移すかもしれないし、僕らが別の住まいに引っ越し、この家を人に貸す可能性もないとは言えないからです」

空間の使い方を決めつけないこの家なら、これからどんどん変わるであろうライフスタイルに柔軟に応え、長く快適に暮らせるだろう。もっと言えば、日部さん一家が新しい生活を求めたとき、住人が誰に変わろうと自分らしくカスタマイズして暮らすことができる。どんな暮らし方も受け入れるしなやかな住まいは、人生の選択の自由度まで高めてくれるのかもしれない。

【日部 友裕】
狭小×旗竿というハードルのある敷地でしたが、1カ所だけ眺望が抜ける部分があったので「これならいける」と思いました。吹抜けの中庭『タテノニワ』と、各階の位置を高めにとるスキップフロアをベースに、計画的な窓配置で採光、眺望、通風、プライバシーを確保しています。日差しや風が心地よく、抜け感のある眺望も楽しめて、目指していた通りの“ずっといたくなるような”住まいになったと思います。
  • 地階 ワークスペース/書物や模型がぎっしり置かれた日部さんのワークスペース。地階は鉄筋コンクリート造なので、内装もコンクリート打ち放しの洗練された印象に。疲れたら2階に上がってひと休み。家の中でオン・オフがつけられ快適だが、オフィスを移転した場合は子ども部屋などにしてもいい

    地階 ワークスペース/書物や模型がぎっしり置かれた日部さんのワークスペース。地階は鉄筋コンクリート造なので、内装もコンクリート打ち放しの洗練された印象に。疲れたら2階に上がってひと休み。家の中でオン・オフがつけられ快適だが、オフィスを移転した場合は子ども部屋などにしてもいい

  • 1階 フローリングスペース~水まわり/フローリングスペースは洗面室、バスルームなどの水まわりともつながる。現在は同じフロアの和室を寝室としているので、入浴から就寝、朝の身支度などの動線が抜群

    1階 フローリングスペース~水まわり/フローリングスペースは洗面室、バスルームなどの水まわりともつながる。現在は同じフロアの和室を寝室としているので、入浴から就寝、朝の身支度などの動線が抜群

  • 1階 水まわり/白で統一した清潔感あふれる水まわりはゆとりあるスペース。床はタイルで水気の多い場所でも気兼ねがいらない

    1階 水まわり/白で統一した清潔感あふれる水まわりはゆとりあるスペース。床はタイルで水気の多い場所でも気兼ねがいらない

撮影:アトリエあふろ(古川公元)

間取り図

  • 1F間取り図

  • 2F間取り図

  • B1F間取り図

基本データ

施主
K邸
所在地
東京都小平市
家族構成
夫婦+子ども1人
敷地面積
71.09㎡
延床面積
79.74㎡