面白い家が建てられそう!土地を購入する際、予算だけではなく様々な理由からあえて選ぶ人も多い「変形敷地」。建築家の上原さんは「せっかくの敷地をフル活用したいなら、建築家がプランニングするのがベター」と言います。自由度の高い設計で、納得の家づくりを。
この建築家に
外観/ツートンカラーが潔い。「黒と白を基調としたい」とのリクエストで決定された配色だという。「黒い壁に、出窓などの外に出る部分とポーチなど内に入る部分を白にしたパターンと、その逆の2パターンの模型をつくり、それを見たうえで選んでいただいた」のだそう
3階 LDK/北側から安定した光が入ってくるリビング。大きな出窓から見える景色は、光が家の方向から公園に向かって降り注ぐため、眩しいこともなく堪能できる。「直射日光もある程度確保したほうがいいので」トップライトや、隣の建物と目線が交錯しない位置に窓を配置している。ソファもオーダーメイドでつくった。「建物の白・黒の色合いと、生活で使うものの中間にあって、なじむような色を」とグレーのファブリックを使い、赤いクッションでアクセントをつけた
3階 キッチン/上原さんが「贅沢な配置」だというキッチン。実際に立ってみると、空間全体を見渡せるばかりか出窓の景色も楽しめる、ゆとりのあるつくりになっている。LDKは落ち着いた雰囲気で重厚感も出したい、とのご希望から床を黒にし、キッチンの立ち上がり部分や背面の造作棚も同じ色合いに
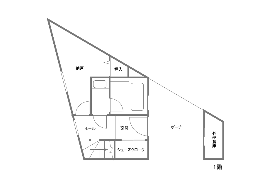
1階 納戸/1階には押し入れ付きの納戸を設け、荷物を置くほかにもフレキシブルな活用ができるようになっている
外観 西側鋭角部分/施工をおこなう工務店にも「痛いくらい鋭く作ってほしい」と口うるさいくらいに言っていた、と上原さん。この家の「聖域的な感じで」つくられた部分は、ラインのかっこよさもさることながら、空に突き刺さりそうな頂点が美しい
1階 ガレージ(ポーチ)/車一台すっぽり収まるサイズのガレージ(ポーチ)。左側は外部倉庫になっており、キャンプ用品など大型用具の出し入れが車と直にできる。右壁面の窓は浴室のもの。浴室がこの位置にあるのも、変形敷地に建つ家ならでは
3階 リビング/鋭角部分を際立たせることに腐心した外観とは逆に、なるべく鋭角部分ができないように考慮したという内部空間。ベランダをつくったことで、リビングの使い勝手もとてもよくなった








