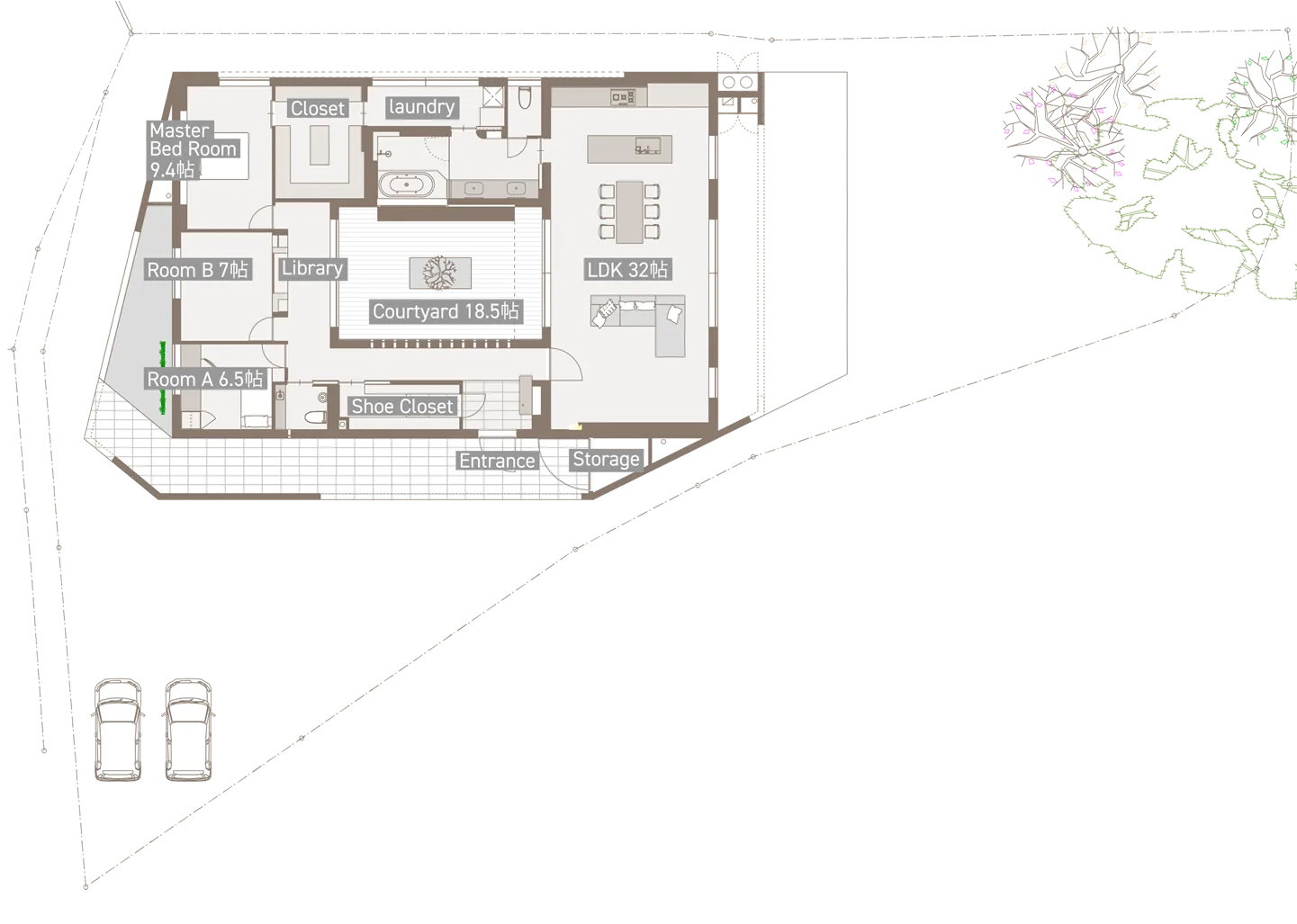
緑に囲まれた暮らしを楽しみたいと、里山の眺めが美しいエリアの土地を選ばれたお施主さま。ただ、畑や隣家からの視線を気にせず開口できるのは一方向のみ。建築家の石さんは、家を特徴的な壁で包むことでプライバシーを確保しつつ切り取った景色を満喫できる家を計画。それでいて、中庭のおかげで家はいつも明るい。
この建築家に
外観。利便性がよく、風光明媚な場所に建つ「西宮・里山の白い平家」。空の青や里山の緑に白い壁面が映える
側道側から見た外観。RC造の四角い躯体を、白いシェルと呼ばれる壁で包み込んだ。シェルは敷地の形状におおよそ沿って計画。幅や高さを調節し、庇の役割も兼ねさせた。一方で、光を取り入れたい場所は天窓をつくり、視線を避けつつ光を室内に届けている
エントランス。左の扉はウォークスルーのシューズクローゼット。エントランスをすっきり整えられる
大空間のLDK。右は里山に向け、左は中庭に向けて開口。高い天井に合わせてサッシは特注した。縦のラインが少なく、景観を余すことなく楽しめる。両側の大きな窓のおかげで開放感は抜群。ご主人がシンプルなスタイルを好まれることから、天井や壁も極力すっきり整えた
LDKから中庭方向を見る。左の開口はエントランスへ。右の引き戸は洗面脱衣室や主寝室に繋がる。室内を抜ける形で家を一周できる。家事動線をコンパクトにまとめ効率を高めたうえ、ゆとりあるLDKの大空間を実現した。広々した寛ぎのスペースのおかげで暮らしがより楽しく
洗面脱衣室(手前)、浴室(奥)。ご要望からシンクは2つ設置した。洗面台の下は収納。右の棚の奥を折れるとランドリー、クローゼット、主寝室まで通り抜けられる。行動の流れと家事の流れを反映させた、効率よい動線をつくりあげた
浴室は中庭に面しており、窓は全開放できる引き込み戸とした。露天風呂のような気持ちよさを得られる
寝室。ヘリンボーンの床と暗めの色合いの天井が落ち着いた雰囲気を醸し出している。ナチュラルな素材を用いたライティングもリラックスできそう
中庭はご要望から計画した。十分な広さがあり、日中は存分に光を室内に届ける。それぞれ接する場所に合わせた開口の仕方で、空間を引き立てている。夕暮れには穏やかな雰囲気に。中庭越しに反対側の様子が見えるなど、魅力いっぱいの場所だ






























