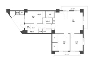
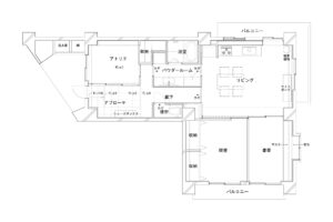
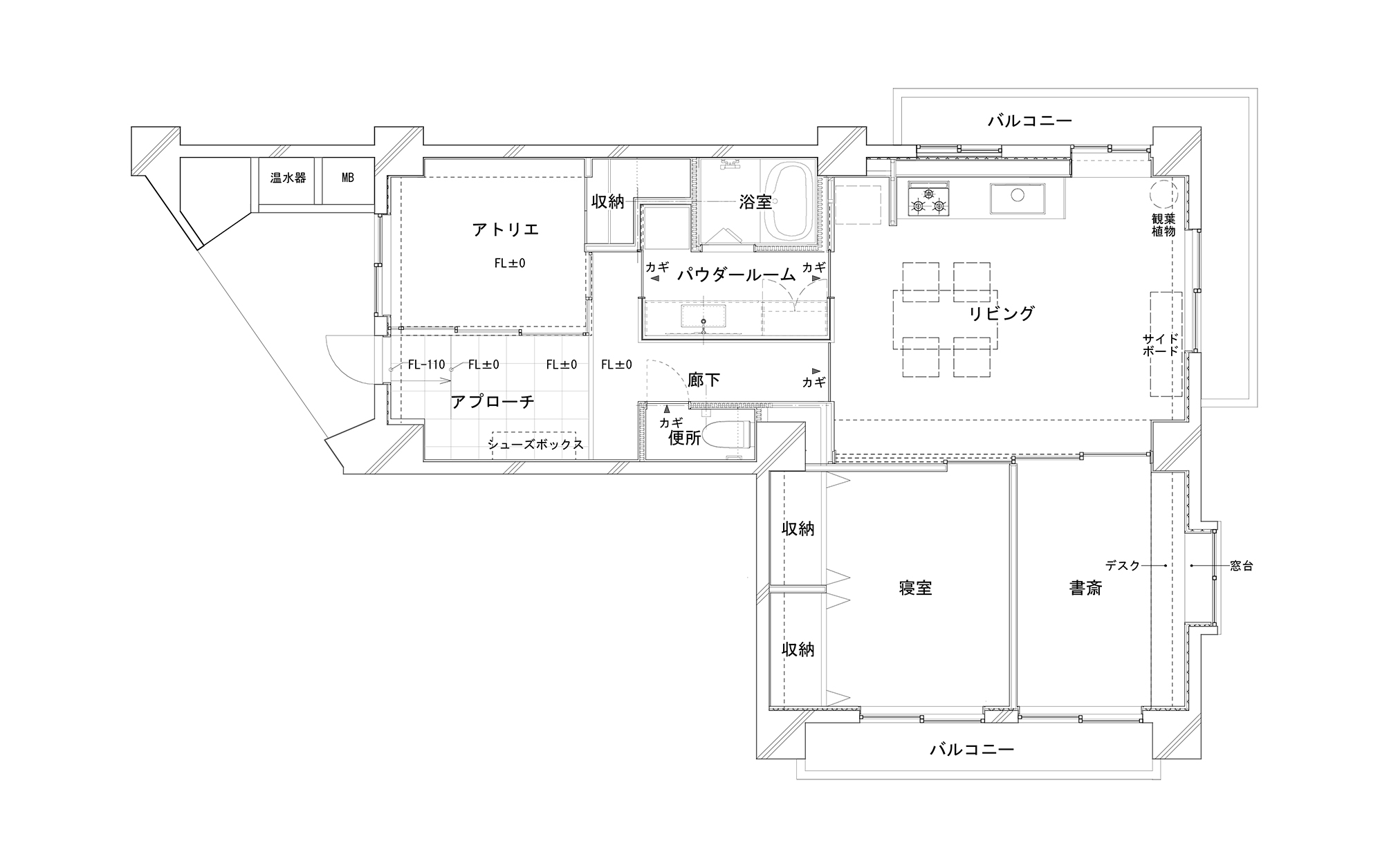
松並木を望む築40年のマンション住戸を、光と視線が抜ける開放的な住まいに一新したのは建築家の佐藤真紀さん。前職で大型プロジェクトを多数手がけてきた佐藤さんの豊富な知見を反映した、ナチュラルモダンな空間の魅力を紹介する。
この建築家に
玄関からの眺め。仕事の来客対応を想定したアトリエ(写真左)のガラス戸を閉じると、ガラス戸の中桟、その奥にあるパウダールームの壁の水平スリット、奥のガラス扉の中桟が一直線になるように設計してある。奥行きを感じられ、本能的に美しいと思える空間
玄関から邸内を見る。アトリエ(写真左)のガラス戸を開けると玄関土間とひと続きになり、来客を迎えるのにふさわしいオープンな空間に。正面奥のLDKへ入るドアもガラス扉なので視線が通って閉塞感は皆無。LDKに入る光も玄関まで届き、とても明るい
写真左がアトリエ、写真右がパウダールーム。2面にかけてガラス戸で仕切ったアトリエは戸を開放すると玄関土間とひと続きになり、仕事の来客をゆったりと迎えられる
写真左が仕事の来客を想定したアトリエ。右がパウダールーム。無垢材を使った特注のガラス戸の中桟は、パウダールームの壁の水平スリットと一直線になるように設計され、スッと気持ちよく通るラインが生まれている。こうしたさりげないデザインへのこだわりが空間の上質感を高める
アトリエは2面にかけてガラス戸を入れてあり、とても開放的。写真左のガラス戸の先はパウダールーム。パウダールームは引き戸を開けるとオープンになる造りで、壁にも水平スリットが入っているので光が通りやすい。おかげで、LDKに差し込む自然光がアトリエまで入ってくる
LDKと玄関の間に位置するパウダールームは両サイドを引き戸にし、正面の壁は水平スリットを入れ、宙に浮いているような軽やかなデザインで新調。引き戸を全開するとLDKの窓が見え、外の爽やかな自然を感じられる。光も風もスムーズに通り、邸内全体がぐっと明るくなった
来客の使用も想定したパウダールームは、壁にダイス状の大理石をあしらったホテルライクなデザイン。オリジナルで設計したカウンターは広々。照明の落ち着いた光も心地よく、ゆったりとしたラグジュアリーな気分で手洗いや身支度ができる
LDKからの眺め。建具を開け放すと、LDK、書斎(写真左奥)、寝室(写真中央奥)、パウダールーム(写真右奥)など、邸内全体が大きなワンルームのようになる。どこにいても視界が広く、面積以上にのびやかな居心地を味わえる
2つのワークスペースのうちの1つである書斎。壁の下地の位置を調整して窓台の枠を目立たなくするなどのテクニックで、フラットな平面を実現。カーテンボックスも壁の内側にしまい込んであり、一見すると壁をくり抜いただけのよう。無駄のないすっきりとした仕上がりが美しい
床はナラの無垢材をセレクト。真っ白な空間に有機的な表情がプラスされ、ホッとくつろげるナチュラルな心地よさが生まれている。キッチン周辺の壁はパウダールームとカラートーンを合わせ、濃淡のあるグレーのタイルを採用。こちらも白い空間の上品なアクセントになっている
LDK側は窓のブラインドを上げると松並木の緑が見える好環境。リノベーションではオープンにできる引き戸やガラスの建具を多用して邸内の一体感を高めてあり、LDKを介した外の自然を玄関付近でも感じることができる。人と自然の関わり方を熟考するという佐藤さんらしい設計
LDKから書斎(写真左奥)、寝室(写真右奥)を見る。寝室の壁は厚みを持たせて施工。引き戸も極限まで隙間ができないように設計したものを特注し、遮音性を高めている。夫婦のどちらかが仕事をしてどちらかが寝るときも、音が気にならずノーストレス








