建築家の吉田祐介さんの自邸兼事務所は、モデルルームの役割も担っており、設計はもちろん素材使いのヒントが満載。光や風をうまく取り込みながら、吉田さん独自のセンスで個性豊かな素材をまとめ、快適性とデザイン性を見事に両立させた空間の魅力を紹介しよう。
この建築家に
2つの小さな「おうち」がくっついているかのような、愛らしい外観。外壁に焼きスギを使った1階の「おうち」は和室の一部。赤みのあるカラマツを使った2階の「おうち」は吉田さんがデスクワークを行う仕事スペースになっている
玄関ドアは周囲の吹き付け仕上げの外壁と同じ素材。手触りを考慮し、ドアノブ付近だけステンレスを貼っている。外観全体のデザインを損ねない、さりげない存在感
土間の天井(写真右上部)は表情豊かな木毛セメント板。土間を上がってすぐの床は、なぐり加工のオーク材
1階LDK。リビングからキッチン・ダイニングを見る。木を多用した空間だが重さはなく、ルイスポールセンのペンダントライトやマルニ木工の椅子といった名作家具と好相性。天井の一部はボードを張らない現し(あらわし)仕上げで高さと表情を出し、広がりのある印象に
明るい光が入る1階の玄関土間。広々した造りで、趣味のDIYを楽しむのにぴったり。奥の窓際にはベンチをつくってあり、テーブルを置けば接客スペースとしても使える。写真左を入ったLDKとは、引き戸を閉めて仕切ることもできる
1階のダイニング。階段上部の窓からは、明るい光が差し込む。テーブル横のセメントボードの壁は、グレーでまとめた階段手すりのアイアンやキッチンと統一感がありつつも、独特の素材感で趣を添える。写真右の白い引き戸の取っ手は、高級感あふれるウォルナット
1階リビングスペースは開放的な吹抜け。写真右には掃き出し窓がある。吹抜け上部の窓からも光が降りそそぐ
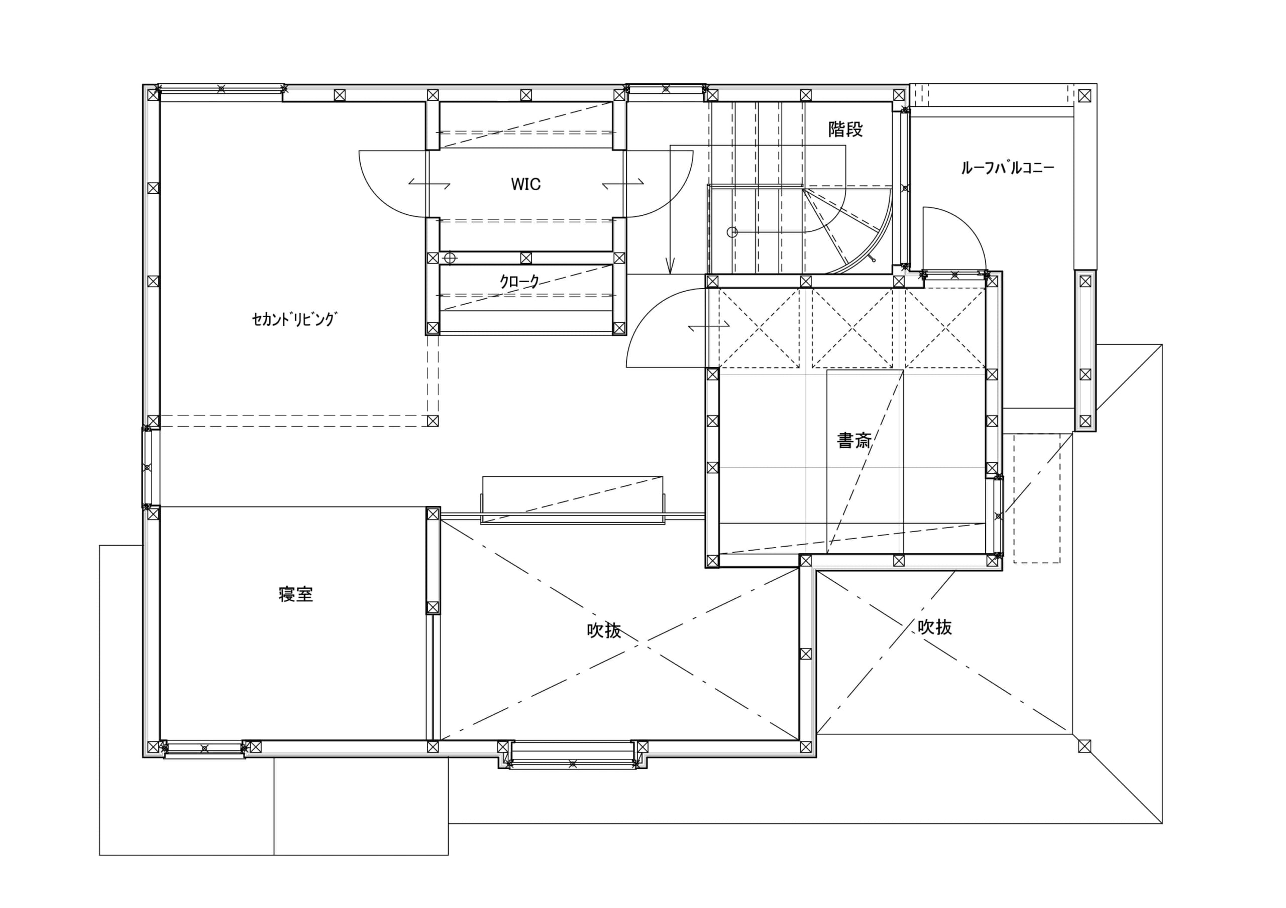
2階廊下から寝室側を見る。廊下は吹抜けに面し、大きな窓からたっぷり入る光が2階全体に行きわたる。写真左奥は寝室。ここも、三角屋根の「おうち」をモチーフにしたデザイン。椅子が置かれた空間は、将来仕切ることもできる第2のリビング








