家の価値は広さや部屋数ではない
中庭が生み出した、自然とつながる家

どこか懐かしさを感じさせるけどオシャレ。新築なのにずっと前からそこにあったように感じる。住まう人・訪れる人をほっこりさせ、自然体でいられる家を作ったのは、橋野文設計事務所の橋野さんでした。

この建築家に
相談する・
わせる
(無料です)

部屋数を削っても作った4.5帖の中庭が、それ以上の価値を生みだした

大阪市に隣接し、交通アクセスの良さと緑豊かな環境から、多くの人々が住む吹田市。マンションや戸建てが立ち並ぶ住宅地でありながら、ところどころ畑も存在する街にその建物はあった。グレーの板塀や色とりどりの植栽に囲まれた杉板の外壁の建物は、ずっと以前からそこに建っていたかのように感じさせるほど、この地域に溶け込んでいる。この家は、女性建築家橋野文さんの自邸。

もともとマンション住まいだった橋野さんが、お子さんが小学校に上がるタイミングで自邸を自分で手掛けることを決断。理想の住まいをつくるため、探し当てたのがこの場所だった。

橋野さんが自邸を建てるのに最も重視したのが「自然を感じながら人間らしい暮らしができる家」ということ。

橋野さんはそれを実現するための1つとして約4.5帖の中庭を設けることとした。通常の発想であれば、土地に対してどれだけ床面積を広くできるか、部屋数を増やせるかということになりがちだが、橋野さんはあえて部屋数を犠牲にしても、中庭を設けた。
「抜け感・解放感を大事にしたかったんです。来ていただいた人からも、『広く感じる』と言っていただけています」と橋野さん。

外観からはこの家に中庭があるようには思えないが、それがとてもよい役割を果たしている。

まず1つめの役割が、家の中へのアプローチとしての役割。門扉から玄関に行くには必ず中庭を通る必要がある。いわば中庭が出迎えてくれる格好だ。植えられた木々が目を楽しませてくれるし、大きくとられた窓から室内の様子も伺える。日本家屋の縁側のように内と外をゆるやかに隔てているのだ。

中庭の役割の2つめは眺望だ。中庭をコの字に取り囲むLDKと和室。どこにいても植えられた木々が四季の移ろいを感じさせてくれる。キッチンに立っていても視線の先には、中庭が目に入る。閉塞感をなくすため、あえて建物の半分には2階を設けなかったため、お月見だってできるというのだから風流この上ない。

また、中庭に面した窓からは、太陽の光が降り注ぎ、室内を明るく照らす。そして窓を開ければ風が吹き抜ける。自然を感じながら暮らすことを可能とした。

さらにこの中庭は、使える中庭でもある。LDKの一部は縁側のようになっていて腰掛けることもできる。中庭でバーベキューをしたり、流しそうめんをしたりもするのだという。
「蚊のいない時期は、椅子を持ち出して、夕涼みしながらナイターを見るのが好きなんです」と橋野さん。

部屋数を犠牲にして設けた中庭が、それ以上の豊かな暮らしをもたらした。
  • ずっと前からこの場所に建っていたかのように、街に溶け込むU邸。木の壁や板塀もどこか懐かしさを感じさせる

    ずっと前からこの場所に建っていたかのように、街に溶け込むU邸。木の壁や板塀もどこか懐かしさを感じさせる

  • 中庭が玄関までのアプローチや縁側の役割も果たす。土間のように仕上げた玄関には、家族で伐採した木を踏み台として利用

    中庭が玄関までのアプローチや縁側の役割も果たす。土間のように仕上げた玄関には、家族で伐採した木を踏み台として利用

  • キッチンの中心には家族で伐採し磨いた柱が。テーブルも同様に樹齢200年の杉の木から作り出したもの

    キッチンの中心には家族で伐採し磨いた柱が。テーブルも同様に樹齢200年の杉の木から作り出したもの

自らの手で切り出した木材で作った柱やテーブルが感じさせる手仕事の温かみ

この家から感じる居心地のよさは、中庭がもたらす明るさや解放感・眺望だけではない。
誤解を恐れずに言うのならば、キメすぎておらず、自然体でいられる家なのだ。素敵なホテルに泊まっても、「やっぱり自宅が落ち着く」ということがあるように、モダンで洗練された建物は、素敵な時間を過ごせる反面、体が完全に脱力することがない。一方で古民家然とした建物がしっくりくるかというと、それはまた現代の生活にマッチしない部分もある。

しかしこの家は、新しいながらもどこか「古き良き」を感じさせてくれるし、古民家のような木の落ち着きを感じさせながらも、オシャレという絶妙なバランスなのだ。
それは、橋野さんの類まれなるセンスと培ってきた経験から生み出されるものなのだろう。

橋野さんは、素材の使い方も秀逸だ。
この家には、フローリングや天井はもとより、外壁や建具にも自然木を多く使っている。天井は、構造材を現しにした。これは高さからくる解放感を出すともに、木に包まれるという安心感をもたらす。木に包まれた生活はやはり日本人のDNAにしっくりくるのだ。

実は、LDKにそびえる柱とテーブルの素材の木は、橋野さんファミリーが自ら山に入り伐採、製材や乾燥も見て、研磨も自ら行ったものなのだという。
「山に入って生きた木を伐り、それが人の手によって家の一部になることを体験したことは、子供たちにとってもかけがえのない経験になったと思います」と橋野さん。

自然の中にあったものを、手仕事によって家の一部とする。そうすることで、家も自然の一部となる。また、家は買ったものではなく、自ら建てたものとなる。そのことが家への愛着にもつながるだろう。

現代の住宅は、もはや工業製品と言っていいほど、とかく人工的になりがちだ。そのような中にあって橋野さんは、木に囲まれる、光や風を感じる、植物や月などを眺めるといった、自然を感じられる家づくりを大切にしている。これからも、我々日本人が、身も心もほっこり落ち着く家をつくり続けてくれるに違いない。
  • LDKの天井は、構造材を現しにすることで木のテイストと高さの広がりを生かした。トップライトからの光が室内に降り注ぐ

    LDKの天井は、構造材を現しにすることで木のテイストと高さの広がりを生かした。トップライトからの光が室内に降り注ぐ

  • 外の目を気にせず、解放感を味わえる中庭。植えられた植物が四季のうつろいを感じさせてくれる

    外の目を気にせず、解放感を味わえる中庭。植えられた植物が四季のうつろいを感じさせてくれる

  • 中庭は解放感や採光をもたらすだけではない。使える中庭として縁側に座ったり、椅子を置いて夕涼みすることもあるのだという

    中庭は解放感や採光をもたらすだけではない。使える中庭として縁側に座ったり、椅子を置いて夕涼みすることもあるのだという

  • バスルームはハーフユニットを採用。大きく窓を取り明るく開放的なバスルームになった

    バスルームはハーフユニットを採用。大きく窓を取り明るく開放的なバスルームになった

撮影:YUNAGI MIKI

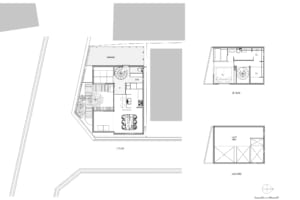
間取り図

  • 間取り図

基本データ

施主
U邸
所在地
大阪府吹田市
家族構成
夫婦+子ども2人
敷地面積
99.33㎡
延床面積
78.6㎡
予 算
2000万円台