将来は夫婦2人で暮らすための、小さな、倉庫のような家を建てたいと依頼を受けた建築家の中野さん。ライフスタイルが確立しているご一家に合わせ、自由にオープンに暮らせる住まいにしたいと計画。完成したのは、ダイニングまで土足で出入りできる、玄関のない家だ。
この建築家に
川から家を眺める。道路ではなく川を基準に家を配置したため、周辺の家と比べて川と家の距離が近い。おかげで、水が流れる気配を感じたり、川からの風を余すことなく家に取り入れたりと環境を生かし切ることができた
道路から家を見る。道路側のテラスは川の流れを思わせる円形で計画。円形は、どの方向からも人が集まって来やすいという利点もある。ポリカーボネート板の向こうはサンルーム。アルミサッシの部分にはダイニングがあり、サンルームと合わせて大きく開口できる
道路側のテラスからサンルームを見る。ポリカーボネート板はすべて外に向かって開けられる。ダイニングとの仕切りはガラスが入ったサッシやカーテンで。状況に応じて一続きの大きな空間にしたり、サッシを閉めて風除室としたりとフレキシブルに使用できる
ダイニングからリビング(左)、川側のテラスまでを見る。来客は土間部分奥にあるトイレにも靴を脱がずに行けるため、基本的にリビングには上がらない。開放的な空間でありながら段差によって感覚的に仕切られ、プライバシーが確保された。川側のテラスでは夕涼みも満喫できる
建具のストッパーには、フランス落としを取り入れた。「カチャンという音も含めて、アナログな感じがHさまのライフスタイルに合うと思いました」と中野さん
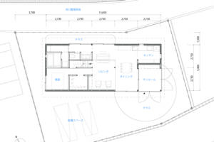
右にテラス、左奥サンルーム、左手前ダイニング。玄関がなく、テラスからダイニングまでを土間空間にしたことで、どこからでも家の中に出入りできるようになった
インテリアが整えられた後の、水回りへ続く土間空間と川側のテラス。人が集まる、くつろぎの場となった
撮影:八代写真事務所(YASHIRO PHOTO OFFICE)








