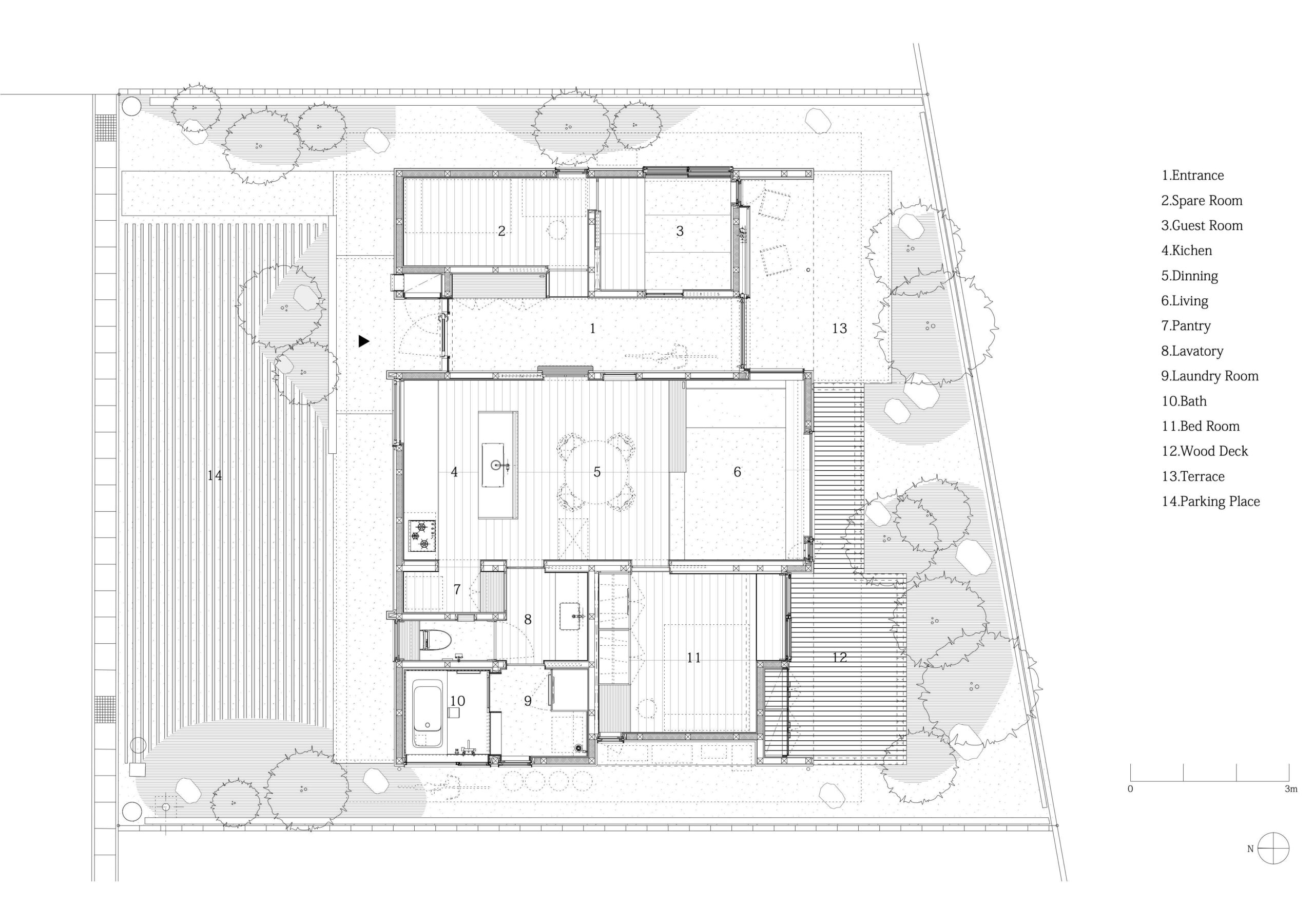
岐阜県関市に、独創的な家が誕生した。高機能・高断熱住宅であるのに、家の中心には南北に通り土間があるのだ。扉を開けると、心地よい風が通り抜ける。通り土間を進むと、眼前には美しい田園風景が広がる。この眺望を最大限に満喫できるよう、外構も同時に考えられた。この独創的な家の秘密を、ご紹介しよう。
この建築家に
玄関側の外観。玄関前には建物の横幅と同じ長さで、ステップが設けられている。一段高くなったこのステップは、車止めを兼ねている。このため車止めがなく、スマートに見える。玄関前の植栽も、家の中からの見え方を考えて植えられている
通り土間から見た南側の景色。玄関を入った時にこの風景が見えることで、その先の景色を期待させる。外の景色を最大限に楽しめるよう、南側の引き戸は全開放できるように設計された。外と中の連続性を感じられるように、通り土間の壁は外壁と同じ素材でできている
通り土間から外に出た場所から見える景色。敷地と水田の高低差は1.8m。この高さを活かした景観をより楽しめるように、フェンスではなく手すりを設置した。その効果は絶大だ
通り土間を出た場所にあるテラス。この場所の庇は3m弱あるため、雨の日でも外で楽しむことができる。外壁には植栽とテラスを照らすための照明も設置されている
玄関。外と中の連続性を感じられるように玄関扉の左右にはガラス窓が設置され、外壁のつながりを感じられる
土間からダイニングへの入口。小さな庇や床が出ていることで、居住空間へ入る気持ちに切り替えられる
ダイニングから見たリビングと外の景色。リビングを一段下げることで、落ち着いた空間を実現した。ダイニングから景色を楽しむことができる効果もある。間接照明が多用され、できるだけ照明器具が見えないように設計されている。そのため、とてもスッキリとした印象だ
リビングは、好きな場所で思い思いに過ごすことができるように考えられている。窓際には腰掛けることができるスペースがあり、外のデッキと同じ高さにしているために外との連続性も感じられる。庇が深いため、強い日差しを防ぐ効果もある
リビングへ降りる段差部分には、床と同じ素材を使用した。この場所にも腰掛けることができる
主寝室。落ち着く空間にするため、様々な工夫が取り入れられている。窓とベッドには適度な距離がとられ、間接照明も安らぐ空間造りのために採用された。ベッドの横にある収納のような部分は外部収納。あえて視界を遮断することで落ち着きを生んでいる
寝室前のデッキから見た風景。水田と敷地の間に人が歩く道路はなく、高さもある。手すりのみのフェンスの効果も大きく、人の視線を気にせずにこの景観を満喫できる
デッキ前の庭。外構もセットで考えられている。庭の地面を高くし、デッキに近くすることで、背の低い植栽も眺められるように工夫されている。一番左の木の壁は、外部収納の扉だ。まったく目立たず、建物と一体化し、まるで外壁のように見える
ハイサイドライトが採用され、とても明るい浴室。地元岐阜産のヒノキが使われている
テラス側の夕景。ほのかに漏れる、間接照明の室内光がテラスの照明にもなっている。外壁に設置されたスポットライトに照らされる、テラスと植栽が美しい
撮影:山内紀人








