シンプルな空間と、物に囲まれた空間
相反する要望を同時に実現した、京の邸宅

京都市左京区の東山山麓にある風致地区に、風情のある焼き杉を壁に使った方形屋根の邸宅が誕生した。外観はいかにも京都らしい佇まいだが、この作品の特徴は外観ではなく、そのプランにある。施主様ご夫妻の希望は、相反するものだった。その要望を実現し、さらに魅力的なプランも盛り込んだ作品をご紹介しよう。

この建築家に
相談する・
わせる
(無料です)

体育館のようにシンプルな空間と、
物に囲まれた空間という要望の両立

今回ご紹介する「方形(ほうぎょう)ハウス」と名付けられたこの作品を設計したのは、京都市上京区にある設計事務所、坂井隆夫建築設計事務所だ。

この作品の主な特徴は、2点ある。
・相反する、施主様の要望を両立したことと、
・施主様の要望になかった敷地の魅力を発見し、実現したことで、いずれも基本プランに関連するものだ。

ここから、そのプランについてご紹介していこう。

まずは1点目の、“相反する、施主様の要望を両立したと”について、その経緯をお伝えしたい。

“相反する”の内容は、かなり難易度が高かった。
夫の要望は「体育館のようにシンプルな空間にしたい」というもので、主にリビングや全体の空間を指す。
妻の要望は主にダイニングを「物に囲まれた空間にしたい」というものだったのだ。

代表である建築家の坂井さんによると、最初にその要望を聞いた時には、かなり驚いたという。

「ほとんど真逆のような要望だったので、これはやりがいのある仕事になるだろうなと感じました(笑)」。

ではその要望に対して、どのような解決策を生みだしたのか。

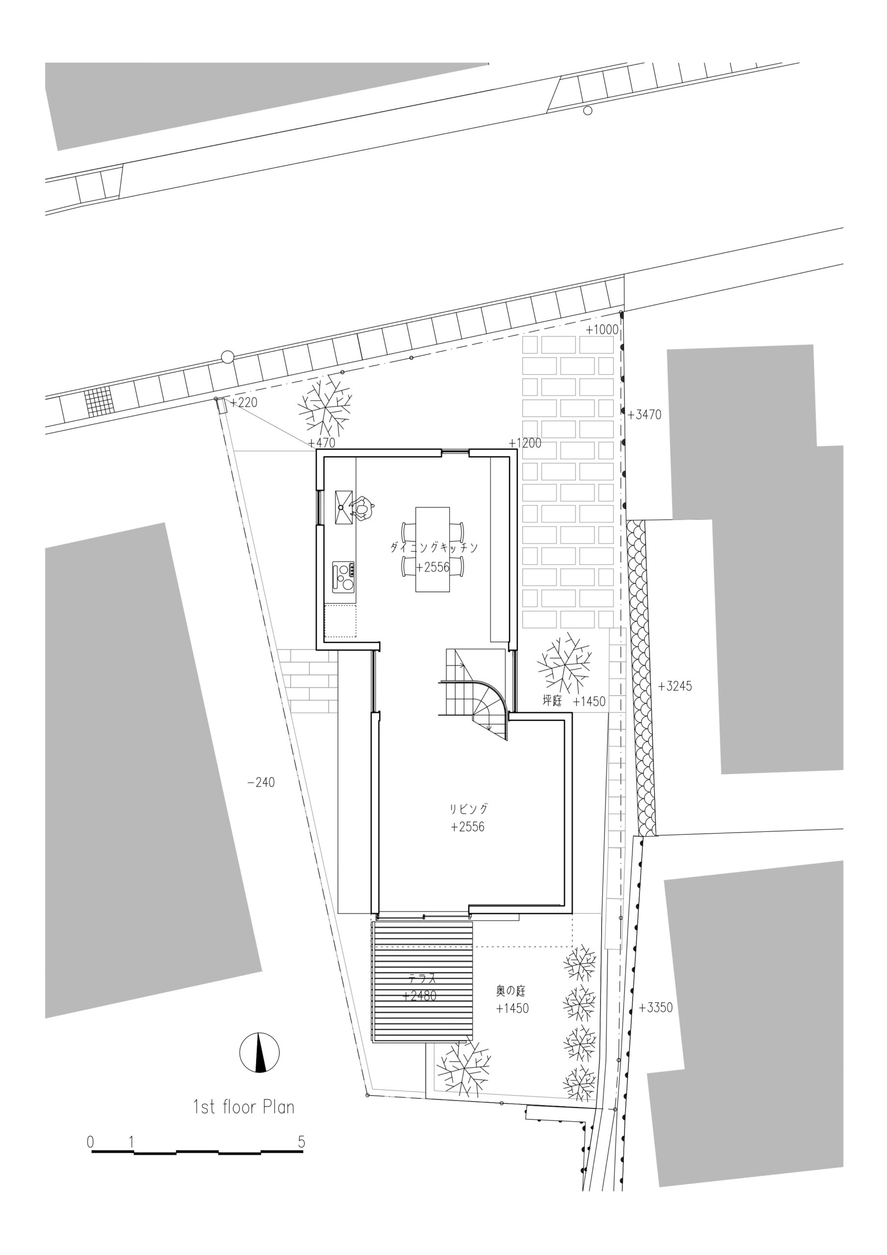
「当初は一つの建物で両立できないかと色々考えましたが、完全に両立することは困難だと判断し、2つの棟で構成されるプランとしました」。

「方形屋根をもつ正方形の2つの棟をずらして配置し、それをつなぐスリット部に階段を挿入しています。この2つの棟を、それぞれの要望を完全に満たす、シンプルな空間と物に囲まれた空間としました」。

坂井さんは、2つの要望のどちらかが妥協するようなプランには、どうしてもしたくなかったそうだ。思い切って2つの棟で構成すれば、そのどちらも完全に満たすことができる。さらに、それらの棟を繋ぐ部分も含め、客間とリビング以外の空間を吹き抜けとした。
これにより広大な空間が確保され、“体育館のような”という要望も満たすことができる。

こうして、施主様の要望を完全に満たす案が誕生した。
  • リビングからダイニングを望む。床から梁下までの縦長窓をはじめ、風景を楽しむための窓が複数確認できる。スケルトンの階段の階段も、階段横の窓からの景色を楽しむため。あえて見せることを意識した梁も美しい。リビングとダイニングは正方形で、高い天井により広さを感じる

    リビングからダイニングを望む。床から梁下までの縦長窓をはじめ、風景を楽しむための窓が複数確認できる。スケルトンの階段の階段も、階段横の窓からの景色を楽しむため。あえて見せることを意識した梁も美しい。リビングとダイニングは正方形で、高い天井により広さを感じる

  • 2階のゲストルーム。窓から見える緑が美しい。施主様は、特に新緑や紅葉の時期の景色がお気に入りだそうだ

    2階のゲストルーム。窓から見える緑が美しい。施主様は、特に新緑や紅葉の時期の景色がお気に入りだそうだ

  • 2階の階段から見たダイニング。実際の床面積と比べると空間の広さ、気積の大きさを強く感じられる

    2階の階段から見たダイニング。実際の床面積と比べると空間の広さ、気積の大きさを強く感じられる

東山山麓の裾野にある立地を活かし、
緑豊かな環境を感じられる家にしたい

続いて、もう1点の特徴である“施主様の要望になかった敷地の魅力を発見し、実現したこと”について見ていこう。

この敷地は東山山麓の裾野にある風致地区に位置し、周辺の山や庭木や生垣によって、緑豊かな環境を作り出していた。

しかも敷地が傾斜地であったため、道路や隣地から半階ずれた床位置にすることで、周囲からの視線をカットすることもできる。

つまり、道路や隣地からの視線をかわすプランであれば、一年中まわりの緑や季節の花や紅葉などを楽しむことが出来るのだ。

そこで生み出されたプランは、半地下+2階建てで、隣地や道路と同じレベルの床がないものだった。

さらに床面から梁下までの縦長の窓を中心に多数の窓を設け、家のどこにいても、複数の窓から自然を楽しむことができるようにした。

坂井さんは、その意図をこう語った。

「複数の窓によって緑豊かな景色が立体的に認識出来るようになり、家の中にいながら周囲の緑豊かな環境と一体となった空間になるようにしたかったのです。京都の街なかでは、このような眺望は望めません。この敷地には素晴らしい特徴があったので、それを最大限に活かせるプランを提案しました」。

施主様も、このプランを大いに気に入り、即答で了承したそうだ。自分たちの相反する要望がすべてかなえられ、なおかつ自然を最大限に感じることができるプランであれば、当然であろう。

この作品には、プラン以外にも坂井さんのこだわりが詰め込まれている。

たとえば、ほぼすべての家具をオリジナルで製作し、階段の手摺やドアの取手までも製作している。

照明も、すべて設計時に組み込まれている。天井に取り付けられる、一般的な照明器具はほんの少ししかない。そしてほぼすべての部屋に、間接照明が取り入れられている。今回の作品は、梁や構造材はできるだけ見えるように設計された。その梁や構造材を、もっとも美しく見せ、空間をシンプルにするための工夫だ。

これらの工夫は、ぜひ写真の説明文をご参照いただきたい。

そして、こうしたこだわりが詰め込まれたこの作品は、第3回京都建築賞 奨励賞を受賞したこともご紹介しておこう。
  • ダイニングから見たリビングと2階のゲストルーム。すべての窓から、緑を楽しむことができる

    ダイニングから見たリビングと2階のゲストルーム。すべての窓から、緑を楽しむことができる

  • リビングとゲストルームの窓は、障子が組み込まれている。障子を閉めると、より落ち着いた空間へと変化する

    リビングとゲストルームの窓は、障子が組み込まれている。障子を閉めると、より落ち着いた空間へと変化する

  • ダイニングの戸棚や家具はすべてオーダーメイドで製作。あえて壁や床の色と変えた家具の色がアクセント

    ダイニングの戸棚や家具はすべてオーダーメイドで製作。あえて壁や床の色と変えた家具の色がアクセント

人それぞれに、好みの環境は違うもの
会話を通じ、それを建物に反映したい

施主様の感想をお伝えしよう。

「縦長の窓のため。満月の夜など家にいながら月見が出来ます」
「雪が舞い落ちる様子が、とてもきれいです」
「新緑から紅葉と、周囲の山が色づく様子が毎日見られます」
「子供が階段に座り、向こうの山に花が咲いたことを教えてくれます」

いかがだろう?

あれほど難題だった、相反する要望への感想がひとつもなく、窓から見える自然や景色に関するものばかりが並んでいる。

これは、施主様の要望は違和感なくすべてかなえられており、満足している。しかし、自分たちの要望にはなかった“自然を身近に感じることができる家”を提案した、坂井さんのプランへの満足度がそれを上回るほど高いということではないだろうか。

坂井さんにこの点を聞くと、
「家のことより、窓から見える景色のことばかりですね(笑)。意図した通りなので、建築家としては成功したと思います」
と、満足そうに答えてくれた。

さいごに、坂井さんが常に心がけている点をご紹介しよう。

「施主様の性格はさまざまで、人それぞれ好む環境は違うと思います。引きこもりたい人、開放的に暮らしたい人、気分や季節によって居場所を変えたい人など、その時々で好きな環境というものがあると思うのです」。

「そのような施主様の好みを、会話を繰り返すことで理解し、建物に反映するようにいつも心がけています」。

確かに、人の好みは、それぞれ異なる。また、敷地が持つ特徴も様々だ。そうした違いや特徴を理解しながら、時には施主様の気がついていないような提案をしてくれる建築家であれば、今回の作品のように満足度が非常に高い家の提案をしてくれるかもしれない。

興味を持たれた方は、いちどコンタクトしてみてはいかがだろう。
  • 同場所は夜の間接照明が美しい。坂井さんは、ほぼ全ての作品の照明も、設計時から手がけている

    同場所は夜の間接照明が美しい。坂井さんは、ほぼ全ての作品の照明も、設計時から手がけている

  • リビングから見たテラス。手が届きそうなほど近くに、豊かな自然を感じることができる

    リビングから見たテラス。手が届きそうなほど近くに、豊かな自然を感じることができる

撮影:石川奈都子

間取り図

基本データ

作品名
方形ハウス
所在地
京都市左京区
家族構成
夫婦+子ども2人
敷地面積
138.97㎡㎡
延床面積
111.14㎡㎡
予 算
3000万円台