京都の中心部に誕生した、手頃な価格の町家
借地に注文住宅という、新たな発想で実現

京都市上京区の美観地区に、風情ある現代的な町家が誕生した。この作品が持つ最大の特徴は、借地に建つ注文住宅である点だ。土地の所有者である寺院は、昔ながらの京都らしい町家を望んでいた。契約者は一軒家を、低コストで建てたいと思っていた。両者の希望を同時に実現した、この作品をご紹介しよう。

この建築家に
相談する・
わせる
(無料です)

京都らしい街並みを、将来も維持したい
借地に注文住宅という発想が生まれた背景

京都市内は借地の比率が、他の地域と比較してとても高い。寺院が所有する広大な土地が、借地として利用されてきた歴史があるからだ。

今回ご紹介する“北町町家”は、もともと知り合いだった住職から、ある建築家が相談されたのがきっかけだった。

相談を受けたのは、上京区にある坂井隆夫建築設計事務所の坂井さん。

その内容は、寺が所有する借地の街並みを、京都らしい景観を残すものに復活できないかというものだった。

住職は、以前から借地として契約している街並みが、京都らしい町家ではなく現代的な家に変わってきていることに心を痛めていた。

この作品をご紹介する前に、借地について簡単に確認しておこう。

一般的に、借地では契約者が自分でその土地に家屋を建てることが多い。さらに、借地の利点は低コストで土地を利用できることにあり、その家屋も低コストなものとなる傾向にある。

借地にはおもに定期借地と普通借地があげられる。定期借地は契約期間満了で終了し、更新されない。期間満了時に更地で返還する義務がある。普通借地は借地権の更新や譲渡および家屋の売買が可能である点が大きな違いとなる。

この寺院の借地は、すべて普通借地で契約されている。つまり、昔ながらの町家が並ぶ街並みは、契約者が現代的な家屋を建てることで徐々に失われてきたのだ。

普通借地権の多くは契約更新や譲渡されるが、一部は契約満了で寺院に返却されることがある。そこで住職は、このタイミングで街並みを復活させることができないかと考えた。町家が並ぶ、軒が連なった街並みの継承を望んでいたのだ。

住職から相談を受けた坂井さんは、普通借地に注文住宅を建てることで、景観条例などの法規をクリアした上で、魅力的な京都らしい家と街並みを再建し、持続できないかと考えた。

当然、そのタイミングは普通借地権が契約満了となり、返却される時になる。一気に街並みを変えることはできないが、逆に言えば時の流れとともに、徐々に京都らしい街並みを復活することができる。普通借地の契約なので、新たに生み出された町家は長い期間残り続ける。

古くからの町家は老朽化が問題となっており、その維持管理に苦労している人も多く、取り壊されるものも多い。そのような中、時とともに町家が続く街並みが復活していくというのは、とても夢がある話ではないだろうか。
  • 現代に蘇った、京町家。杉板の外壁、瓦、敷地いっぱいに続く軒が町家らしさを再現している

    現代に蘇った、京町家。杉板の外壁、瓦、敷地いっぱいに続く軒が町家らしさを再現している

  • 門扉を開けて入ると、すぐに前庭が。軒下の通路を通り、玄関に。典型的な京町家のイメージと重なる

    門扉を開けて入ると、すぐに前庭が。軒下の通路を通り、玄関に。典型的な京町家のイメージと重なる

  • 中央右が玄関。前庭・奥庭も部屋のように感じられるよう、それぞれの庭に面した位置に開口部を集中させたプラン。部屋の中と外に境界を設けないことを意識した。構造はあらわしで、鴨居に照明を埋め込み極力シンプルに

    中央右が玄関。前庭・奥庭も部屋のように感じられるよう、それぞれの庭に面した位置に開口部を集中させたプラン。部屋の中と外に境界を設けないことを意識した。構造はあらわしで、鴨居に照明を埋め込み極力シンプルに

  • ダイニングから見た光景。左に前庭、右に奥庭。門扉を閉じると外からの視線が入らないため、庭に面した窓を常に全開放することができる。思いのほか開放的な空間だ

    ダイニングから見た光景。左に前庭、右に奥庭。門扉を閉じると外からの視線が入らないため、庭に面した窓を常に全開放することができる。思いのほか開放的な空間だ

  • 旧来の町家は柱と柱の間に障子がある構造。そのイメージを踏襲してサッシの枠が目に入らないよう、柱を切り欠いて枠を埋め込むなどの工夫がなされている。奥庭には1.5mの庇があり、その下にはウッドデッキが。外で食事などができるようになっている

    旧来の町家は柱と柱の間に障子がある構造。そのイメージを踏襲してサッシの枠が目に入らないよう、柱を切り欠いて枠を埋め込むなどの工夫がなされている。奥庭には1.5mの庇があり、その下にはウッドデッキが。外で食事などができるようになっている

2世帯住宅で、自由な使い方ができる家
現代的な町家で、希望を叶える工夫とは

この作品は、借地に注文住宅を建てるという点で、通常と違う特徴を持つ。

特に、いわゆるお施主様が2人いるという点が大きな違いだろう。つまり、地主である寺院の意向と、住まう人の要望を両立させる必要がある。

寺院のおもな要望は、
・瓦屋根で京都らしい町家のような家にしてほしい
・2階建てにしてほしい(3階建ても可能な地域だが、町家が続くような景観にしたい)

住まう人のおもな要望は、
・2世帯住宅にしたい
・将来にわたり、自由な使い方が可能なものにしたい

というものだった。

これらの要望をすべて満たす必要があり、坂井さんはまず、町家の特徴を把握することから始めた。その構造や伝統、形式を確認し、次のようなプランを作成した。

まずは外観。外壁に焼杉を使い、瓦を使用することで町家らしさを表現。将来、町家が続く景観を考え、軒も長く続くものとした。

門扉を入ると前庭があり、玄関へとつながる流れも重視した。これは伝統的な町家の配置をイメージしたものだ。玄関が前面道路に面し、土間を通って奥庭に続くという昔ながらの町家の配置を、現代の法規に則った形で再現した。

門扉を閉じると前面道路からは内部が見えず、一見すると閉じられた空間のような印象を受ける。しかし実際には前庭とは別に奥庭もあり、逆に視線を気にせず窓を解放することができ、かえって開かれた空間に感じる。

坂井さんはこのプランについて、こう語った。

「この建物は、2つの部屋のボリュームをずらして配置した、2つの庭を持つコートハウスと捉えることもできます。ずらした部分に窓を集中させることで、庭を含めた敷地全体を感じられる設計になっています」。

住まう人の要望に対する解決策も、この設計に反映されている。

2階には北向きの低い勾配天井の空間と南向きの高い勾配天井の空間があり、1階にはそれぞれ前庭と奥庭に面した部屋がある。これらの空間はほとんど壁や扉で区切られておらず、繋がっている。この異なる環境が、季節や家族の変化や使い方に応じて柔軟に使える居場所を作り出しているのだ。

坂井さんは、意図した点をこのように語ってくれた。

「ここがリビングでここが寝室といった決まりはなく、季節や気分によってリビングや寝室を移動したり、家族の変化に応じて書斎やアトリエとして利用したりできるようにしました。住む人が自由に居場所を見つけ、暮らしていけるように考えています」。

こうして、地主と住まう人の要望を両立した、現代的な町家が誕生した。
  • 2階。北向きの低い勾配天井の空間(写真奥)と南向きの高い勾配天井の空間(写真手前)が繋がっている。仕切りを作らないことで、気分によって自由に使うことができる。将来の生活スタイルが変わっても対応可能だ

    2階。北向きの低い勾配天井の空間(写真奥)と南向きの高い勾配天井の空間(写真手前)が繋がっている。仕切りを作らないことで、気分によって自由に使うことができる。将来の生活スタイルが変わっても対応可能だ

  • 天井が低い側の2階。軒まで続く梁などの構造が見えて美しい。子供の勉強机が造作で準備されている。2階もすべて間接照明で、シンプルに仕上げられている

    天井が低い側の2階。軒まで続く梁などの構造が見えて美しい。子供の勉強机が造作で準備されている。2階もすべて間接照明で、シンプルに仕上げられている

  • キッチン・ダイニング。家具やテーブルはすべて造作だ。キッチンの壁面は金属素材のZAM。高耐食性メッキ鋼板で磁石が使え、錆びにくい。デザイン面でのアクセントと掃除などのしやすさも採用の理由となった。鴨居に照明を組み込み、このスペースもシンプルに

    キッチン・ダイニング。家具やテーブルはすべて造作だ。キッチンの壁面は金属素材のZAM。高耐食性メッキ鋼板で磁石が使え、錆びにくい。デザイン面でのアクセントと掃除などのしやすさも採用の理由となった。鴨居に照明を組み込み、このスペースもシンプルに

  • 家族全員分の収納が可能となる、広大なWIC。収納を一か所にまとめることで、その他のスペースを有効に使うことが可能となった

    家族全員分の収納が可能となる、広大なWIC。収納を一か所にまとめることで、その他のスペースを有効に使うことが可能となった

  • 前面道路に面する場所に、あえて窓は設けなかった。道路が西側となるため、西日を避けるためだ。窓がない西側に収納を集めている。一方で2つの庭に面する場所は大開口の窓を設置しているため、室内は明るく風が吹き抜ける空間となっている

    前面道路に面する場所に、あえて窓は設けなかった。道路が西側となるため、西日を避けるためだ。窓がない西側に収納を集めている。一方で2つの庭に面する場所は大開口の窓を設置しているため、室内は明るく風が吹き抜ける空間となっている

  • この作品の前から見た街並み。今は古い町家と現代の家が混在している。将来、この通りが現代的な町家が続く街並みとなることを目指している

    この作品の前から見た街並み。今は古い町家と現代の家が混在している。将来、この通りが現代的な町家が続く街並みとなることを目指している

毎日を快適に過ごせる、現代の町家
その街並みが蘇る、将来が楽しみな地域

実際に住み始めた人の感想をお伝えしよう。

「ガスファンヒーター1台で家全体が暖かくなります。夜に消して朝起きても、まだ暖かく快適です」。

これは現代的な町家に住むメリットだろう。耐震性・断熱性・機密性を十分に高めているため、毎日の生活を安心して快適に過ごすことができる。

「鳥が庭にある木の実を食べに来るのを眺め、楽しんでいます。窓を解放できるので、風がよく通り抜けるのも心地よいですね」。

これも、町家の良さを取り入れたプランのメリットといえる。京都市内中心部の住宅地で自然を感じることができる。これがどれほど贅沢な環境であるかは、京都に住まう人であればよくわかるはずだ。

冒頭でもお伝えした通り、この作品のような物件は次々に建てることができない。普通借地権の契約が満了となり、返却されるタイミングに限られるからだ。

しかし、京都市内の環境が良い土地を購入し、注文住宅を建てるのと比べて圧倒的に価格がリーズナブルな点と、契約を更新できる点は魅力的だ。

そのため、寺院が保有する近隣の借地についても、問い合わせが数多く寄せられているという。特に教育環境(学区)が良いことで、このエリアへの移住を考えている人が多いそうだ。

そこで坂井さんたちは、京町屋の街並みを復活させるこの取り組みを、“京都現代町家ぐらし”プロジェクトとして推進することにした。時間がかかる、息の長い活動となるからだ。

活動の詳細は下記をご参照いただきたい。
https://kyoto-modern-machiya.jp/

ご紹介した今回の作品の他にも、基本的なプランのみが作成されている物件が複数あり、上記サイトで確認することができる。もちろん、“北町町家”同様、自分の要望を反映させた最終プランとすることができる。

興味を持たれた方は、いちどコンタクトしてみてはいかがだろう。


撮影者:石川奈都子

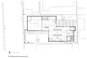
間取り図

  • 1階 平面図

  • 2階 平面図

  • 屋上 平面図

  • 断面図

基本データ

作品名
北町町家
所在地
京都市上京区
家族構成
夫婦+子ども2人+両親
敷地面積
97.95㎡
延床面積
96.39㎡
予 算
4000万円台