都心からほど近い団地の一室を、リノベーションで生まれ変わらせた建築家の自邸。住棟間隔にゆとりがあり、周囲が開けた団地特有のスケール感を生かすことで、どんな豊かな暮らしが叶っているのか。また、RC造の制約をどのように魅力に変えていったのか。設計者で住まい手でもある、黒瀬直也さんに話を伺った。
この建築家に
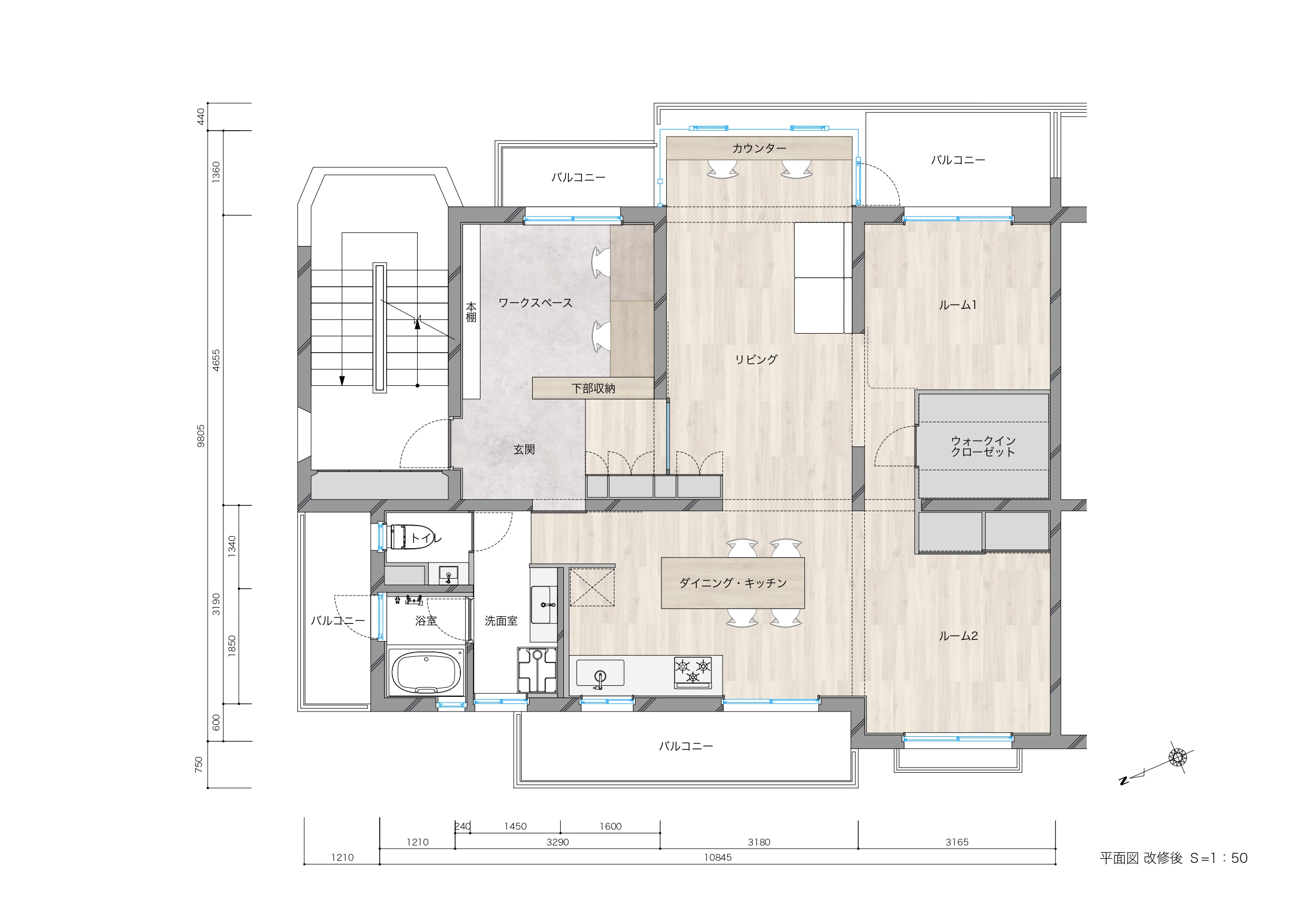
玄関ホールとの仕切りにはガラス入りの引き戸を採用。視線が真っすぐに抜け、空間の奥行きを感じられる
玄関横に設けたのは土足のまま上がれる土間のワークスペース。LDKにつながる引き戸を閉め切ることにより、独立した一部屋として利用することが可能だ。ワンフロアの中に少し奥まった落ち着ける空間があることで、自宅での仕事にも集中できるのだそう
既存の間仕切りや扉を取り払った大きなワンルーム空間は、どこにいても家族の気配が感じられてお子さんを見守りやすい。「広い床の上をのびのびと走り回れるのもこの家のよさですね」と黒瀬さん。ぐるりと回遊できる動線もお子さんがワクワクできるポイント
高い天井や開口、ハイドアによる「今っぽさ」とは正反対の、少し低めの天井や開口こそが「団地らしさ」。既存物件の特徴をそのまま個性として生かすことも、リノベーションの面白さのひとつだ。制約をいかに魅力に変えていくかが、建築家のセンスと経験の見せどころ
構造上、取り払うことのできないコンクリートの壁を現しに。無機質なだけの空間にならないよう、新たに造作したウォークインクローゼットはラワン合板で仕上げ、木の温もりをプラスした。いずれもラフな質感の素材のため相性がよく、見た目にも馴染んでいる
空間を細かく仕切らないことで、東・西・北の三面に窓から入る光が部屋の隅々にまで届き、明るい住まいに
隣家の視線を気にする必要のない団地の一室で、カーテンのいらない暮らしを楽しんでいる黒瀬さん。ソファに座れば、視線の先に豊かな緑と広い空だけが目に入り、都心の住宅地ではなかなか感じることのできない開放感とゆとりに包まれる
フローリングに用いたのは180mmの幅広のオーク材。玄関から奥に向かって貼るのが一般的だが、同物件ではあえて大きな窓とバルコニーがある東西に向けて貼り、視線の抜けと方向を揃えてさらなる広がりを演出した。引き戸のフレームも木製で統一感を出している
眺めのいい窓辺でクリエイティブな仕事ができたらと、リビングの一角に設えたカウンタースペース。カウンターテーブルの下に本棚を造作して使い勝手を高めた。三面採光で昼は明るく開放的、夜はスポットライトの灯りの下リラックスして過ごせる
家族の食卓、ワークスペース、お子さんの遊び場と、さまざまな用途に活躍しているダイニングテーブル。こちらも黒瀬さんがデザイン&造作したオリジナル。書類やお子さんのおもちゃを大胆に広げられるワイドなサイズで、下部は収納スペースとしても活用している
間仕切りや扉は必要最小限に。部屋をあえて仕切らないことによる豊かさと、家全体が受け入れる光と風をどこにいても感じられる家。一体感がありながらもコンクリートの梁によって視覚的なゾーニングが叶い、生活シーンに合わせて空間を使い分けることもできる
ラフに仕上げる内装は暮らしながらカスタマイズがしやすく、DIYでコストを抑えられるメリットもある。黒瀬さんご自身、親族に手伝ってもらいワイワイ作業をしたことも家づくりのいい思い出になっているそう。「簡単な工事なら一緒に手を動かせるのでご相談ください」
リノベーション時に断熱改修を行い、外周に面する壁には新たに断熱材を施工。部屋を閉め切って過ごすのが好きではない黒瀬さんは、夏は窓を開けて風を感じ、冬でも換気をしっかり行うなど、外の空気に触れる心地よさを大切にしながら暮らしている
開口部をまたいで設置した収納は、玄関収納兼リビング収納として使える2wayスタイル。引き戸のウッドフレームが引き立つよう、この収納はラワン合板ではなく白い面材で造作した。空間全体を俯瞰し、素材や色のバランスを調整するのも設計者の大切な仕事
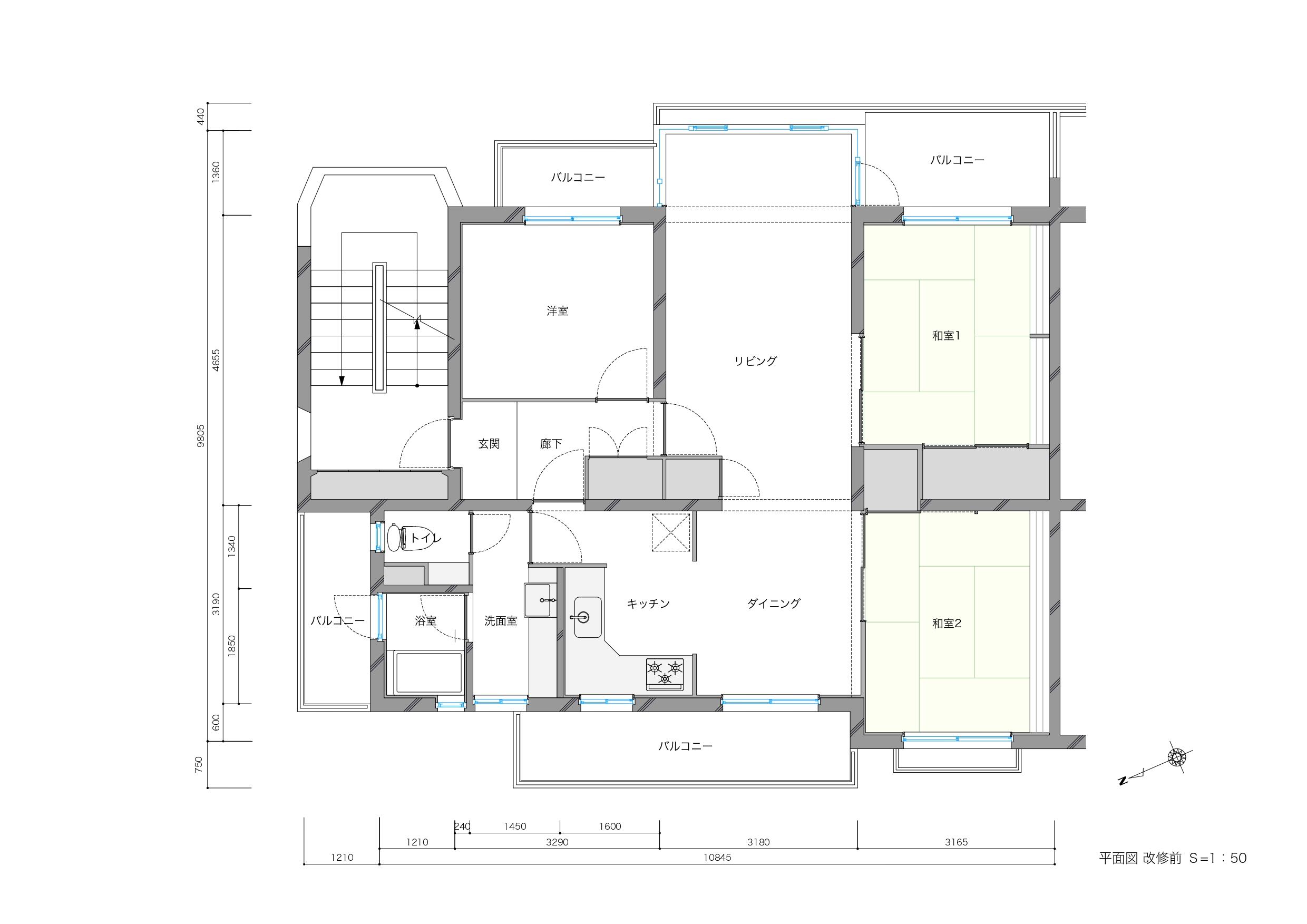
解体前の黒瀬邸。完成時からリフォームがほぼ未実施の築40年の物件は、価格がリーズナブルで、リノベーション費用を足してもコストを抑えることが可能に。大規模修繕が行われた直後というのも、中古物件を購入するにはベストなタイミングだったそう








