「美住のすまい」は、いのはな建築事務所の鈴木さん夫妻の自邸。普段お施主さまへの提案する事柄をさらに突き詰め、表現した家だ。コスト感にこだわり、メリットとデメリットを見極め適正な土地を選ぶことから、素材選びや間取りなどひとつひとつを吟味して、ライフスタイルに合った家をつくり上げた。
当事務所は建築設計・構造設計という2つの柱を業務の軸としており、意匠性に優れた開放的な空間と耐震性を両立させたバランス良い設計が得意です。快適で安全な「建築」をご希望の方は、お気軽にご相談ください。
建築家の詳細
玄関。1階の天井を下げ階段の段数を少なく、蹴上を緩やかに。リビングの大開口からの光が静かに落ちてくる
1階。ウォークインクローゼットは透け感のあるカーテンで仕切った。アーチとともに柔らかな印象を与える
1階寝室は、将来2部屋に分けることができる。将来、車いすが必要になった場合などに備えて1階のどこかは掃き出し窓にしたかったと2人。庭のフェンスは宏昌さんがDIYした。1階は全体的に同じフロアタイルを敷き、設えの雰囲気アップとコストダウンを同時に実現
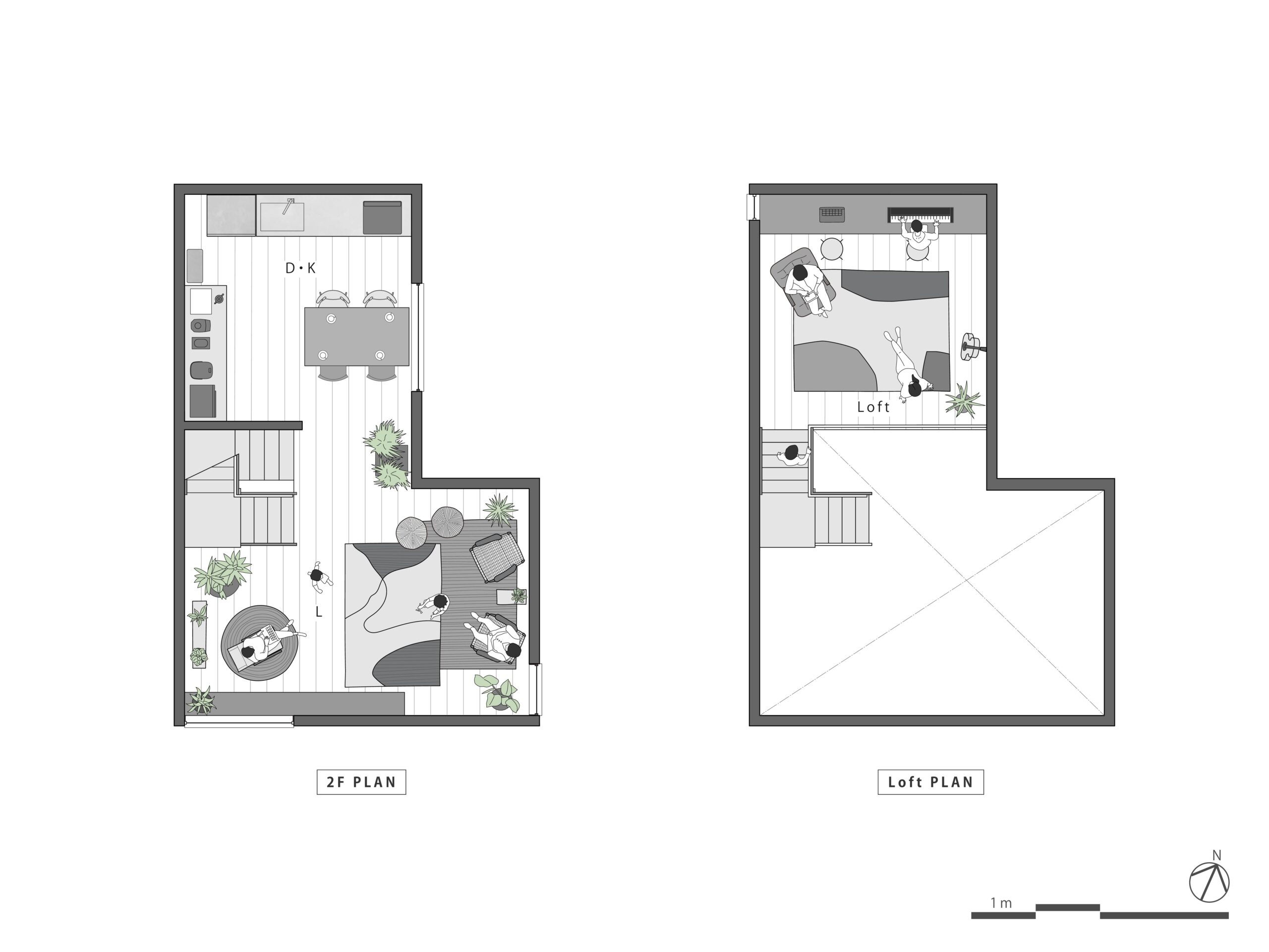
2階リビングはロフトまでの吹き抜けで天井が高く、開放的。シナ合板の天井に合わせ、グレーやグリーンをプラスし温もりに満ちたインテリアとした。明るいメープルのフローリングは幅が広めのものを採用し、空間のおおらかさを引き立てている
ダイニングからリビングを見る。天井高や素材の違い、袖壁のおかげで建具がなくとも空間の切り替わりが明確に。画像右のマグネットボードやルーター置き場はデザイン性と実用性を確保。リビングからの死角となる袖壁裏に配置し生活感があふれがちなスペースが目立たないようにした
当事務所は建築設計・構造設計という2つの柱を業務の軸としており、意匠性に優れた開放的な空間と耐震性を両立させたバランス良い設計が得意です。快適で安全な「建築」をご希望の方は、お気軽にご相談ください。
建築家の詳細








