「道上のデイサービス」は敷地の三方を道路に接した角地にある。オーナー様の要望は「この場所に溶け込みつつ、よくある民家を改修したような施設とは異なるオープンな雰囲気の建物にしたい」というもの。建築家の橋本さんは「くの字」の建物を提案し温かみある室内環境と、周辺環境に調和する佇まいを両立させた。
この建築家に
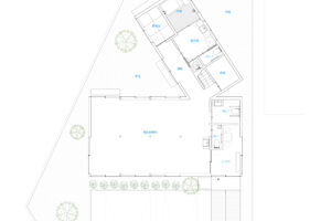
上空から見た建物(右から2番目)。市道に面する南側に駐車場、他にも敷地内に中庭など2つの余白を設け、その余白を躱すように建物を「くの字」に配置した。建物の厚みを薄くし、近隣の家々と同程度の印象を受けるようなボリュームに抑えて地域に調和させた
南側から見た外観。右下が入口。1階には機能訓練室を配置し、大きさを変えながら並ぶ連続窓を設けた。2階は事務室。下から延長するような窓を設けることで1階2階がひとつの空間にも見える。中庭側にも同じように窓を計画。視線が反対側へ抜け、オープンな雰囲気が表現されている
西側から見た外観。全面的に開口した南北だけでなく東西にも開口を設けたおかげで、機能訓練室からは常に外まで視線が伸びる。道行く人も利用者様たちが活動する様子を眺めることができ、安心感を得られる
北西から見た外観。左端の木を残したいという要望から、北側に庭を計画。さらに西側に中庭も設けた。くの字の建物のうち、右側1階が機能訓練室。掃き出し窓からアクセスし、中庭をより豊かに活用できるように設えた。利用者様スタッフさんみんなで庭づくりを楽しまれている
1階、機能訓練室、2階、事務室。デイサービスだけでなく、施設全体をオープンな雰囲気にしたかったと橋本さん。窓に向かって真っすぐ伸びる梁が、素直に街と向き合いたいという思いを表現している
エントランスから機能訓練室を見る。エントランスは土間空間とした。建具はガラス戸に、最奥も開口。視線の抜けが得られるおかげで、機能訓練室は伸びやかな空間といった印象
1階機能訓練室。最初から使い方をきっちり決めたくないという思いから、シンプルな空間につくり上げた。梁などの構造架構もシンプルな掛け方としたことで外部と素直に向き合い、繋がっている。全方向に開口しており、光や風などで五感が刺激される
1階、機能訓練室は高さの異なる窓がリズミカルに並ぶ。光や影の表情の移ろいが楽しめるうえ、移動共に外の見え方も変化し、利用者様は心地よい刺激を得られる。床は裸足や靴下で歩き回れるように足触り(踏み心地)や素材感に重きを置いて仕上げ材を選んだ。自宅のように過ごせる
2階、事務室はスタッフ数の変化に対応できるよう大きなテーブルを造作した。南側の窓は掃き出し窓のように計画することで地面が近く感じられ、2階でありながら平屋にいるような気分で過ごせる
2階通路。扇状に広がる化粧梁が視線を誘導し街や空を取り込む
2階通路から中庭越しに南側の棟を見る。「道上のデイサービス」では、中庭が吹き抜けのような役割を果たす。2階から1階の機能訓練室の様子は中庭を通して知ることができ、安心だ
2階通路から相談室までを見通す。右奥の戸はトイレ。天井の高さを切り替えることで奥行きが生まれている
外観。内側から漏れた光が周囲を照らす。周辺は街灯が少なく、この明るさは地域の人々にとってありがたいだろう
1階、浴室。「日常とは異なる体験をして癒されて帰って欲しい」というオーナー様の要望を実現した檜風呂。昼間に使用するため、ハイサイドライトから日射を取り入れ、より贅沢な時間を過ごしてもらえるよう環境を整えた








