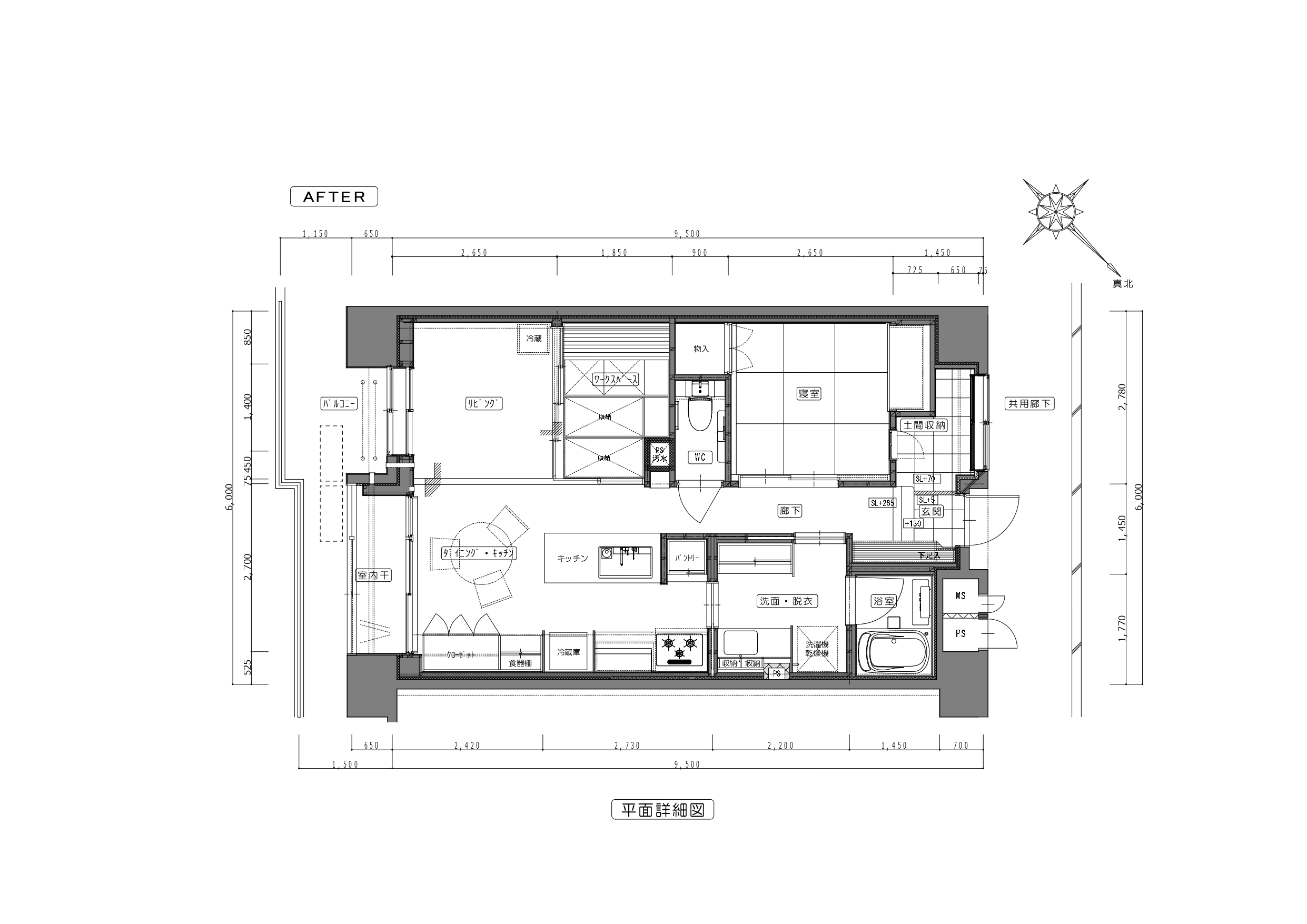
築30年を超えるマンションの部屋をリノベーション。昔ながらの間取りを今の時代に合わせ、開放的に明るくするとともに、動線も整えた。建築家の松下さんは、それに加えて断熱改修も提案。冬暖かく夏は涼しい、全てにおいて上質な部屋に生まれ変わった。
この建築家に
和室。左下は着物タンス。奥行きがあり、後から置くと邪魔になりがちなものでも、プランに取り込むことで空間がすっきり整えられる。右の縦長の部分は土間と接する換気用の小窓。「寝室として使う和室は暗くしたい」という要望を叶えつつ、室内に風を通せるようにした
ダイニングから小上がりを見る。カウンターを畳むと、来客用のベッドに変化する。パソコンなどは小上がりの下に設けられた収納に仕舞うため、用途を変化させるために手間取ることもない
リビングからDK、小上がりを見る。床板を貼った部分は遮音性の高いパネルを入れたが、床を下げたリビングはそれができないため、カーペットが遮音対策にもなっている。床の段差は腰かけてもちょうどいい高さ。リビング段差正面、左の切り込みは、冬には温かな空気の通り道となる
リビング(右)、ダイニング(左)。断熱材を入れたことで天井が下がり、床も上がったが、床の高さの変化や窓から見える外部のおかげで圧迫感なく、むしろ開放的な空間となっている。吉野杉を用いた幅の広いフローリングが、大らかな雰囲気を室内に与えている
リビング(左)、小上がり(右)。小上がりは、コロナ禍の環境の変化からご主人の仕事場としても使えるよう囲いを設けた。カウンター下にコンセントを設け、配線をまとめやすくするなど、作業しやすさにも考慮した
リビング、ダイニングから玄関方向を見る。右側のキッチンの奥は洗面脱衣室や浴室に繋がる。回遊性があり、室内の移動がしやすい。洗面脱衣室にある洗濯機から、物干しとして使うインナーバルコニーまでを直線で繋げ、家事動線も短縮した
ダイニングから小上がりを見る。引き戸により完全に個室にすることも可能。欄間は慳貪式としたため、増減できる。ガラスなどは入れずに、引き戸を閉めたときの通風を確保した
撮影:早川記録 早川真介








