女性目線を大切にしながら「暮らしやすさ」と「デザイン性」を兼ね備えた住宅を生み出している株式会社人と古民家 ヒトコミデザインの牧野嶋さん。施主のTさんご夫妻は、牧野嶋さんに自邸を設計してほしいと、約4年もの間土地を探し続けていたのだという。
Tさん夫妻の理想の住まいを実現した、牧野嶋さんの手腕に迫る。
自分や家族に寄り添ってくれるような家が作れたら。そんな思いで、独立してから18年が経ちました。 100軒を超える家づくりをさせて頂き、その家族全てに違う暮らし方がありました。家を暮らしに合わせて作る。そして快適に過ごしてもらいたい。 今でもお引き渡ししたお客様から快適に暮らしているよとお声を頂くととても嬉しく思います。 私自身、家事をこなし、子育てをしながら仕事をしてきました。その生活の中で、掃除や洗濯、料理などの家事のストレスを少しでも軽減できないか?と考えるようになりました。 また、子育てにおいても、プランの工夫で楽しく楽になる事もわかってきました。そして、男性は家に夢を求める事も。 この夢の部分が家の魅力につながり、女性が求める機能性と男性が求める夢がちょうどよく共存する家を作りたいと思うようになりました。家をプランを提案してもらったけど納得できない方やこれから家を考えていく方、ぜひ一度事務所にいらして下さい。 あなたの望む家は必ず実現します。そのお手伝いをさせて頂けたらと思います。
建築家の詳細
撮影:早崎太郎
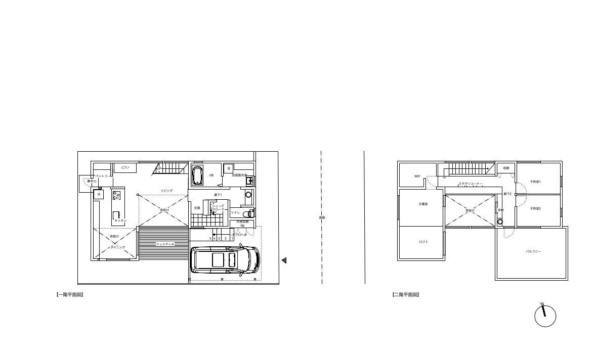
人と古民家さんの設計により、リビングの大きな吹き抜けを介して、ダイニングや二階の諸室はもちろん、外部の中庭や隣地の公園が一体に繋がった様なとても解放感のある住宅に仕上げていただきました。
設計打合せの際には、うるさい子供達が同席した中でも、スタッフの方に子供の相手をしていただきながら、夫婦で集中して打合せに参加できたのが本当に助かりました。
プランニングはもちろん、住宅設備、建材やカラーコーディネートなど、様々な面で女性ならでは素敵なアイデアを提案していただいたので、施主側で決定するのはとてもスムーズで楽しい作業でした。
自分や家族に寄り添ってくれるような家が作れたら。そんな思いで、独立してから18年が経ちました。 100軒を超える家づくりをさせて頂き、その家族全てに違う暮らし方がありました。家を暮らしに合わせて作る。そして快適に過ごしてもらいたい。 今でもお引き渡ししたお客様から快適に暮らしているよとお声を頂くととても嬉しく思います。 私自身、家事をこなし、子育てをしながら仕事をしてきました。その生活の中で、掃除や洗濯、料理などの家事のストレスを少しでも軽減できないか?と考えるようになりました。 また、子育てにおいても、プランの工夫で楽しく楽になる事もわかってきました。そして、男性は家に夢を求める事も。 この夢の部分が家の魅力につながり、女性が求める機能性と男性が求める夢がちょうどよく共存する家を作りたいと思うようになりました。家をプランを提案してもらったけど納得できない方やこれから家を考えていく方、ぜひ一度事務所にいらして下さい。 あなたの望む家は必ず実現します。そのお手伝いをさせて頂けたらと思います。
建築家の詳細








