中庭が叶えた「パブリックとプライベート」の両立
「家族と個人」のほどよい距離感

家は、人が住まう場であるとともに、公と私、パブリックとプライベートを隔てるものでもある。中庭を設けることで、周囲の環境というパブリックにマッチしながらも、プライベート性も高い家をつくりあげたのは、建築家の平野玲以さん。その秘密に迫る。

この建築家に
相談する・
わせる
(無料です)

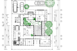
正方形の回廊がつなぐ、大小5つの正方形の棟

京都府の南端に位置し、奈良市や京都市、大阪市へのアクセスの良さと、豊かな自然環境により、ベッドタウンとして人気の木津川市。駅に隣接する大型ショッピングセンターを中心に造成された住宅地の一画に、建築家の平野玲以さんが設計したY邸があった。
Y邸のグレーのスレート素材の外壁には開口部が少なく、要塞を思わせるような重厚感がある。その一方で、南面は傾斜部分にせり出すように建っており、家が浮いているかのように感じる。「重厚感」と「軽やかさ」という、相反する要素を見事に融和させた外観だ。

Y邸の建つ土地は、北面と南面におよそ2mの高低差がある。本来こういった土地では、擁壁を設け土地をフラットにし、建物を北側へ寄せ南を庭とするのがオーソドックス。実際、隣家をはじめ立ち並ぶ家々の多くは、そのような形となっている。しかし、今回平野さんはそのような形をとらず、傾斜のある南側に寄せて大小5つの正方形の棟を配し、それらを回廊でつなぐ形とした。いわばロの字に囲む城郭のような配置としたのだ。

実はこの家に住むのは施主のYさん、その娘と2人の孫といった3世代の女性と子供。大きめの3つの棟は、それぞれの世代で1つというイメージだ。メインの棟は1階にLDKなどの共用スペースと2階にYさんの寝室、残りの2つは娘さんの部屋と子供部屋といった具合だ。

このような建物にしたのには、理由がある。
ひとつは、建物によって周囲からの視線を避け、中がしっかり守られているという安心感のある環境をつくりたいという点。女性中心の家であれば、プライバシーや防犯といったことは重要な課題だ。

もうひとつの理由が、3つの世代が程よい距離感で暮らせる家にすること。
「家族それぞれが気兼ねなく自分の時間を過ごせる家にしたいという要望をかたちにしようと考えたのです」と平野さん。

部屋が上下や隣り合っていれば、音などが気になることもあるだろう。そこであえて棟を分けて、それぞれの部屋には回廊を通っての移動とした。各部屋がゆるやかにつながることで「家族の時間」、「個人の時間」を快適に過ごすことができる環境とした。

環境という言葉は、「環(まわり)」との「境(さかい)」。平野さんは文字通り建物によって内も外も「パブリック」と「プライベート」を程よく隔てながら、両立する家をつくりだした。
  • 敷地の中に大小5つの正方形の棟を配し、正方形の回廊でつなぐ構成

    敷地の中に大小5つの正方形の棟を配し、正方形の回廊でつなぐ構成

  • 娘さんの要望を取り入れたキッチン。作業しながらも、リビングや和室、さらに先の子供部屋まで見通せるつくりとなっている

    娘さんの要望を取り入れたキッチン。作業しながらも、リビングや和室、さらに先の子供部屋まで見通せるつくりとなっている

  • グレーのスレートで覆われ、重厚感をもつY邸。敷地の傾斜に対して建物を浮かせるイメージで軽やかさを出した

    グレーのスレートで覆われ、重厚感をもつY邸。敷地の傾斜に対して建物を浮かせるイメージで軽やかさを出した

  • 5.2mの吹き抜けのある、開放的なリビング。中庭越しに向き合う各棟の配置が空間の広がりと奥行きを感じさせる

    5.2mの吹き抜けのある、開放的なリビング。中庭越しに向き合う各棟の配置が空間の広がりと奥行きを感じさせる

中庭が生み出す、眺望と開放感

Y邸の中に一歩足を踏み入れると、外観から想像がつかないほどの開放的な空間が出現する。その秘密は中庭。Y邸の中心には中庭が設けられて、各棟と回廊は中庭に面しているのだ。

リビングの一部は大きな吹き抜け。5.2mもの高さのある大きなガラスのカーテンウォールから見える景色は壮観だ。太陽の光がふんだんに降り注ぎ、青い空に浮かぶ雲や飛ぶ鳥さえ見上げることができる。
夜になると「リビングから中庭越しに見る満月が美しくて格別」とYさんがいうほど、美しい景色を見ることもできる。

美しい景色という点では、2階からの眺望も格別。吹き抜けにある階段を登ると、眼下にはリビングと中庭、その向こうに広がる周囲の景色という2つの景色を楽しめる。そして、この家ナンバーワンの眺望といってもよいのは、2階の寝室の先にあるテラスからの眺め。右を向けば町の様子が眺められ、遠くには山焼きで名高い若草山も見える。左を向けば、ガラス越しにリビングや中庭が見える。
さらに、天井に三角に切り取られた開口から入る光が、とても面白い陰影をつくりだしてくれるというおまけ付き。

Y邸は、どこにいても、どこを向いても、そこに飽きることがない景色がある。そしてそれを、誰の目も気にせずに満喫できるのだ。1つの家のなかに、これほどまでにたくさんのビュースポットを作り上げてしまう、平野さんのセンスには驚かされるばかりだ。

平野さんのセンスは、建築の妙だけではない。インテリアについても遺憾なく発揮されている。

この家のさまざまな場所に並ぶ、テーブル、ソファー、照明、棚といった品の良い家具やインテリアの多くは、平野さんが自らデザインしたり、セレクトして提案したもの。
「デザインはもちろん、機能面を確認するため、ショールームに同行することもよくあります」と平野さん。
平野さんは、インテリアも建築の一部として捉え、施主が建物にマッチしたものを選ぶために、手間暇を惜しまず寄り添うのだ。

卓越したセンスと施主に寄り添う姿勢で、じっくり丁寧に仕事をするからこそ、満足度の高い家に仕上がる。実際にYさんも「最初は想像もしていなかった家でしたが、今は毎日発見があって楽しいです」という感想を寄せてくれたそう。

また、Yさんが出会った人から「あのお家にお住まいなんですね」「その家知っています』と言われたことも1度や2度ではないという。これは、Y邸が周囲の人々にとっても記憶に残るほど素敵な家だと感じているということに他ならない。しかも、この家の最大の魅力である中の開放感や景色を体験していないにもかかわらずだ。
そしてそれを平野さんに話す、Yさんもきっと誇らしい気持ちだったのだろう。

平野さんはこれからも、住まう人が快適で住みよいだけでなく、周囲の人が「こんな家に住みたい」と羨むような家を作りつづけるに違いない。
  • 2階の寝室への廊下は、リビング・中庭を見下ろしながら、遠くの景色まで見渡せる絶好のビュースポット

    2階の寝室への廊下は、リビング・中庭を見下ろしながら、遠くの景色まで見渡せる絶好のビュースポット

  • Yさんの寝室には、若草山も望める専用のテラスが。三角に切り取られた屋根からの日差しがつくる陰影が美しい

    Yさんの寝室には、若草山も望める専用のテラスが。三角に切り取られた屋根からの日差しがつくる陰影が美しい

  • 高く広々とした玄関。中庭を背に、リビングと個室をつなぐ回廊の役割も

    高く広々とした玄関。中庭を背に、リビングと個室をつなぐ回廊の役割も

  • 食器や調理家電を収納する棚は平野さんのオリジナル。ダイニングセットやランプも、平野さんがセレクトし提案するなど、インテリアもトータルにコーディネート

    食器や調理家電を収納する棚は平野さんのオリジナル。ダイニングセットやランプも、平野さんがセレクトし提案するなど、インテリアもトータルにコーディネート

撮影:小川重雄

間取り図

  • 1F(間取り図)

  • 2F(間取り図)

基本データ

作品名
「高の原の家」
施主
Yさま邸
所在地
京都府木津川市
間取り
4LDK
敷地面積
328.54㎡
延床面積
190.5㎡
予 算
5000万円台