二世帯の同居をスタートさせるにあたり、実家をリフォームしようと考えていたAさん一家とAさんのご両親。親世帯と子世帯、両者の思いに耳を傾けた建築家が出した答えは、まったく個性の異なる2軒の家が並列する、すっきりスマートな家の「新築」だった。
この建築家に
1階リビング・ダイニング/右の階段の途中にお子さんたちが遊ぶ中2階があり、階段をのぼりきった先が将来の子ども部屋。2階の左奥には主寝室がある。リビングを見下ろす2階通路は書斎コーナーとして活用
1階ダイニングからの眺め/道路より一段高い敷地に建つ立地を活かし、角倉さんはダイニングをあえてリビングより低くした。おかげで、椅子に座ると道路と同じ高さに位置する駐車場が目に入らず、カーテンを開ければ庭の景色だけを楽しめる
1階キッチン/オーダーでつくったキッチンは、清潔感のある白で統一。作業台の高さは奥さまの身長に合わせている。壁のタイルは透明感のあるガラスタイル
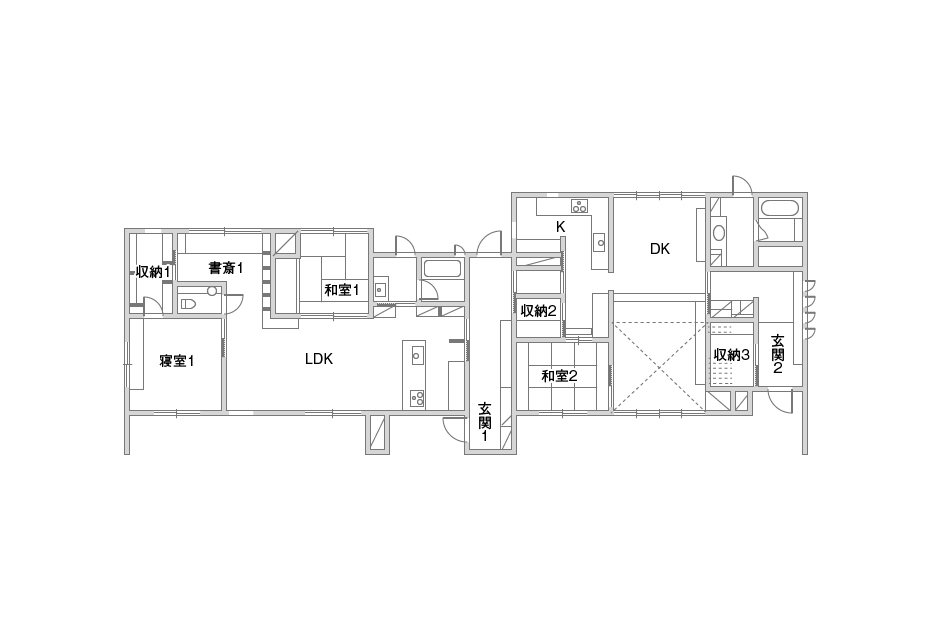
1階和室/リビングの横には和室もある。リビング~和室~キッチンへ回遊できる間取りは奥さまの提案。「和室は、子どもが病気をしたら日中に寝かせる場所として活用できると思ったんです。ここなら、1階で家事をしていても様子がわかって安心です」
リビング・ダイニング/ゆったりと落ち着ける空間。日が落ちてダウンライトなどの照明をつけると、さらに雰囲気がいい。右手は北の庭に面した和室。床框は以前の家で使っていた木材で、床柱は細かな木目が美しい秋田杉を使用した。窓越しの緑と木のぬくもり、洗練された無駄のないデザインが何とも言えない心地よさをもたらす
キッチン/玄関から入ってすぐのナラ材で仕上げられたキッチンもオーダーでつくったもの。調理台の前には高さのある物置きスペースを設け、リビング・ダイニングから調理中の手もとが見えないようにした
書斎/寝室の先にある書斎。横長の窓一面に北の庭の緑が広がり、心癒される空間だ。リビング・ダイニングから寝室、この書斎まで、ぐるっと回遊できる間取りになっている
Aさん一家と角倉さん/設計開始から竣工までの1年半ほどの間、密にやりとりを重ねてきた。笑顔で近況報告をし合う様子からは、家という暮らしの大切な基盤を託し、任された、強い信頼関係がうかがえる
撮影:アトリエあふろ(鈴木暁彦)








