施主さまが望んでいたのは「訪れた人にとっても居心地がよく、出会いと交流をはぐくむような家」。その思いを形にしたのは、建築家の水間寿明さん。楽しい時間を過ごしてホッとくつろぎ、英気を養う。そんなバカンスのような暮らしがかなう住宅の魅力とは?
この建築家に
玄関ポーチに入るとアートのような階段が。浮遊感のある踏板、すうっと伸びた細い手すりのデザインが秀逸
重厚な木製引き戸(写真左)の先の玄関ポーチ。写真正面のガラスドアが玄関ドア。道路に対して閉じた印象の1階だが、玄関ポーチに面したところはガラス張り。訪れたゲストを迎え入れるオープンな造りとなっている
2階LDK。南のバルコニーへ出る大開口は折れ戸で、全て開ければ屋外との一体感が一段とアップ。半戸外のような開放的な空間で、ゲストと楽しいひとときを過ごせる。バルコニーの手すりは無垢の柱を立てただけの上部をつながないデザインで、安全と開放感、デザイン性を担保
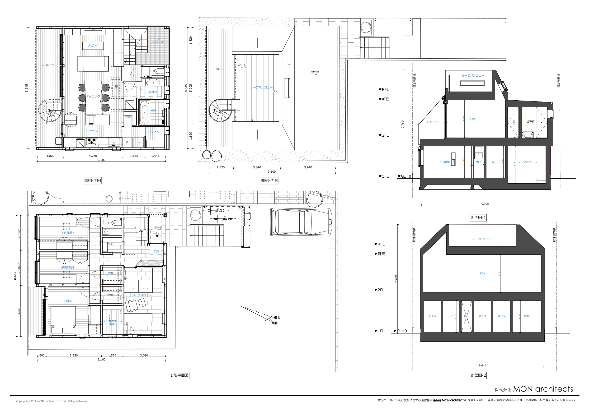
2階バルコニー。らせん階段をのぼると広いルーフバルコニー。らせん階段の奥のドアを開けるとキッチン~水まわりで、洗濯物を干すなどの家事動線が良好。奥がプライベート、手前はパブリックなくつろぎスペースと、らせん階段で空間をそれとなくゾーニングしている
パブリックとプライベートを分けている漆喰壁の廊下。主寝室やウォークインクローゼットなどにつながる
1階にあるKさまのワークスペース。床を一段低くして天井の高さを出し、玄関側はガラス張りに。光が入って視線も通り、広々とした印象になった。内装は落ち着いたトーンだが、床のタイル、壁の木毛セメント板など、表情のある素材で豊かな空間に仕上がっている
アウトドアパーティーにぴったりのルーフバルコニー。夏は大きなプールを置き、親子で水遊びを楽しむ。写真奥の白壁の窓は、LDKのテレビ台の上のハイサイド窓。写真右の白壁はLDK入口付近の上部。邸内にある吹抜け風の高天井が、ルーフバルコニーの視線除けの壁になっている
撮影:髙橋菜生(Nao Takahashi)








