ひとりで暮らす自宅を新築するため、ほぼ三角形の敷地を購入されたお施主さま。建築家の戸川さんは、三角形の敷地に小さな正方形を配置し、余白も活用しながらゆとりある家をつくりあげた。ご友人たちとパーティーをしたり、ひとり時間を楽しんだり。どんなシーンにもフィットする家はどのように完成したのだろうか。
読書が好き。ミステリー小説とかで1頁1頁、1字1字、ドキドキしながらゆっくり読むのが好き。ポジティブになれる本が好き。でもあまり難しい本は読みません。 ジョギングが好き。でも気ままなので頻度は疎ら。 休日はバルコニーでBBQ。お酒?飲みますよ。 基本ポジティブ。 良いと思ったものは使い続ける、食べ続ける、眺め続ける。 良い出会いを大切にしています。
建築家の詳細
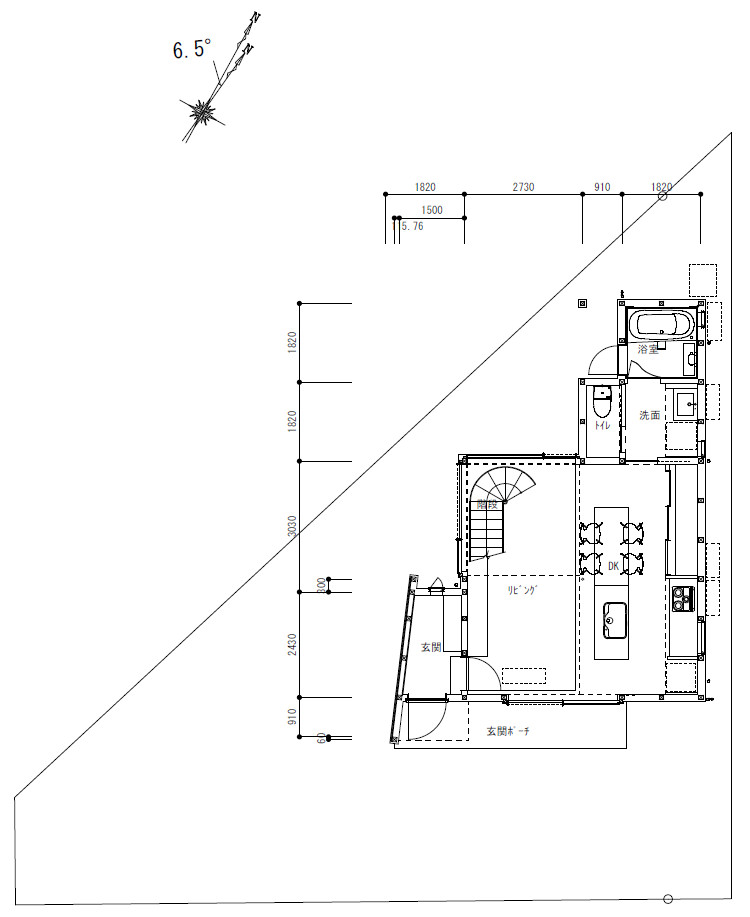
1階、3間×3間の正方形の中に配したLDK、リビングからキッチン、ダイニングを見る。アイランドキッチンは造作し、ダイニングテーブルと一体化させた。背面の棚には食器に加えて冷蔵庫を含む家電なども収納でき、生活感がない空間を実現。左壁面の仕切り戸は水回りに続く
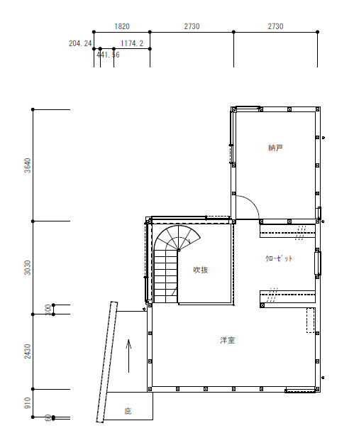
1階LDK。正方形のうち4分の1を吹き抜けとし、開放感をプラス。キッチン・ダイニングのエリアよりリビングのエリアの床レベルを下げ、段差を活用して居場所の多い空間をつくりあげた
1階LDK。質感が感じられる素材をテーブルや床などに選び、かつ要望のモノトーン配色もグラデーションを取り入れて色味を決定した。おかげで室内に入る光から生まれる陰影が美しく、空間に奥行きが感じられるようになった
LDKは吹き抜けを活用し2方向を大開口した。記念碑のおかげで隣家まで距離があり、視線は気にならない
1階キッチン・ダイニングからリビング方向を見る。住宅街でこれだけの大開口ができるのは珍しい。外部へは窓からも直接行き来できるように計画しており、室内外を繋げてのバーベキューなども可能。2階の腰壁を高めに設定し、1階から個室へ伸びる視線を遮った
キッチン、ダイニングテーブルは造作ならではのラインの美しさが際立つ。大きなテーブルはパーティーシーンでも役立ちそう
接道部分から見た家。左は川と記念碑、右は公園と変形敷地ながら恵まれた条件の土地といえる。小さな正方形をまず配置し、余白に水回り(左の突き出した部分)玄関(手前部分)、庭などを設けた。余白にゆとりがあるおかげで、様々な用途に応用できる
記念碑側、南西から見た外観。吹き抜けの角右側にサウナを設置し、中央のデッキで寛ぐ。さらにデッキから直接出入りできるよう計画した浴室でシャワーを浴びることを想定している
読書が好き。ミステリー小説とかで1頁1頁、1字1字、ドキドキしながらゆっくり読むのが好き。ポジティブになれる本が好き。でもあまり難しい本は読みません。 ジョギングが好き。でも気ままなので頻度は疎ら。 休日はバルコニーでBBQ。お酒?飲みますよ。 基本ポジティブ。 良いと思ったものは使い続ける、食べ続ける、眺め続ける。 良い出会いを大切にしています。
建築家の詳細








