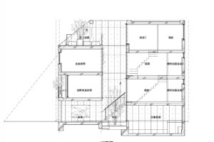
東京・根津に自邸を建てた建築家の谷山武志さん・裕子さん夫妻は、約20坪の土地で中庭、屋上庭園、駐車場、事務所を備えた完全分離の二世帯を実現。盛りだくさんの要素を20坪でかなえたプランには、都市部の家づくりで参考にしたいヒントが満載だ。
この建築家に
2階子世帯の夕景。ガラスの吹抜けの中庭を介して各フロアの空間が見え、ドールハウスのよう。中庭の分だけ床面積は減っているが、見通しが良くなってタテヨコの広がりが強調され、視覚的、体感的な開放感が格段に増している
子世帯は2つのカウンターが並列するキッチンをオリジナルで造作し、写真手前のカウンターには高級感のあるチェリー材を使用。生活空間のインテリアになじむ家具のようなキッチンを目指し、引き出しや収納の取っ手をなくすなど細部にこだわってデザインした
子世帯のリビングスペース(写真左)。コンパクトだが中庭に面しているので視線が通り、外光や上下の広がりを感じられる。中庭側は天井から床までガラスがはめ込まれて屋外との境界があいまいになり、室内なのにテラスにいるような居心地を味わえる
子世帯3階からは屋上庭園に出られる。東京大学のキャンパスの緑(写真奥)も借景にできる好ロケーション
屋上庭園から中庭を見下ろす。ガラス×木製窓枠で囲まれた吹抜けは繊細なガラスの井戸のよう。レトロモダンな風情あふれる美しい光景








