東京・深大寺周辺の住宅街で自邸を建てることにした施主さまは、デザイン性の高いアーティスティックな家を希望。与えられた条件下で自然とつながる上質空間を完成させた、desus(デサス)建築設計事務所の設計ストーリーを紹介する。
この建築家に
玄関を入ると空間を彩るアートのような階段が登場。オリジナリティのあるデザインが邸内への期待を高める
リビング・ダイニングから東を見る。バルコニーとの仕切りは全てガラスで壁がなく、室内と屋外が一体化。贅沢にチークを張った三角天井の空間と、武蔵野の風景が1つになった眺めは、まさに芸術的。この家の中だけで見ることができる「空間×景色」の絶景だ
リビング・ダイニングの天井と壁、床はそのまま東のバルコニーに続く。屋内外の境界があいまいになり、室内にいながら外の光や緑を間近に感じ、心地よい開放感を味わえる
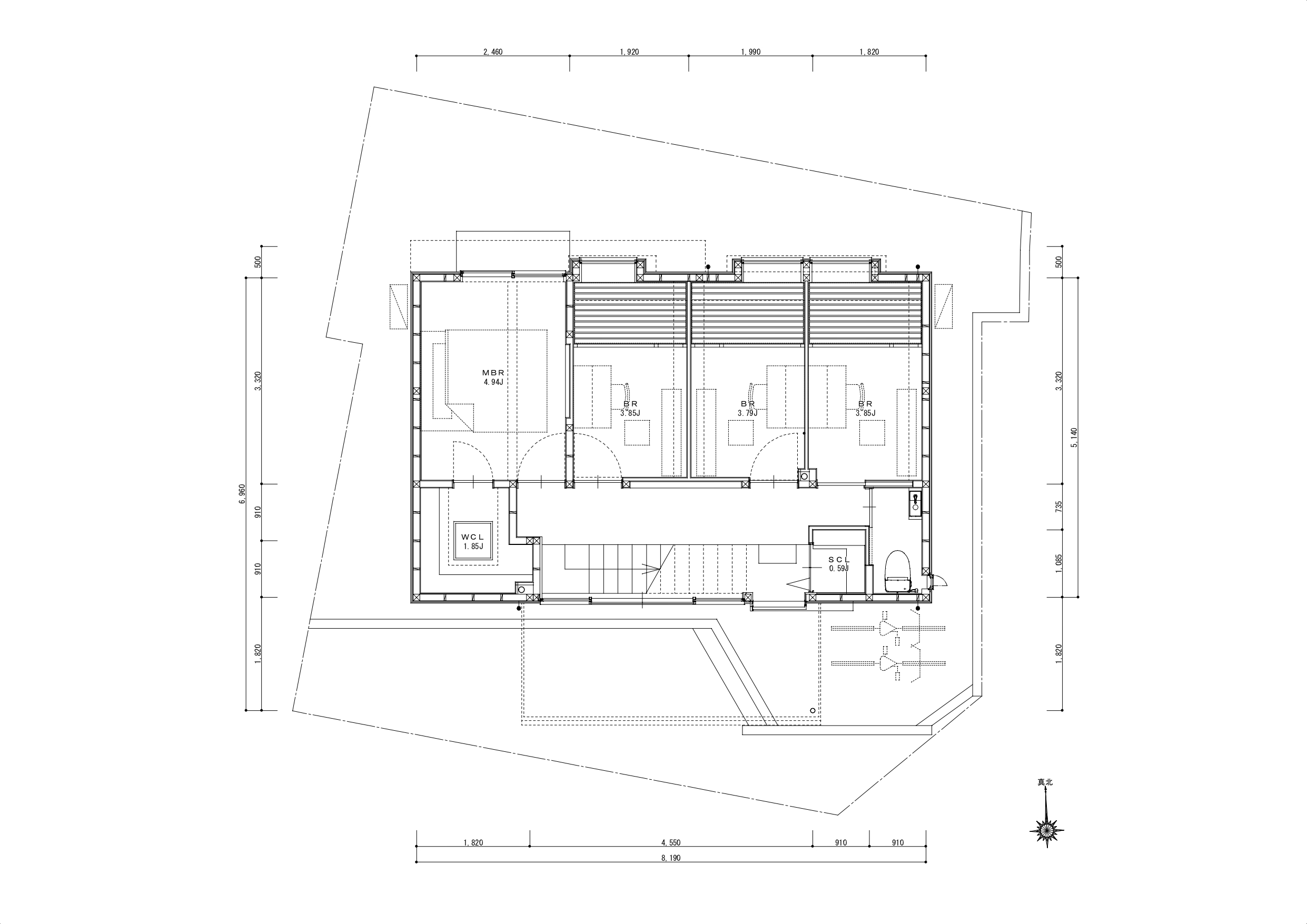
2階LDKでキッチンのある西を見る。キッチン側の上部にも、切妻の形を生かしたハイサイドライトを設置。東西どちらを向いても青空が見える気持ちの良い空間となった。写真右側は要望に応えて設けたスタディスペース。写真左側には大容量のパントリーがある
オリジナルで造作したキッチンにも木材をあしらい、高級感のある仕上がりに。一方で背後の収納等はダークグレーのメラミンで仕上げ、耐水などの機能性を高めると共にコストを調整。desusの設計は、予算も踏まえた細やかな配慮とデザイン性の両立が魅力の1つ
キッチン脇のスタディスペース。奥行きをたっぷり取った出窓をカウンターデスクに仕立て、空間を有効活用
主寝室もチークでシックな雰囲気に。下がり天井のコーブ照明の柔らかな光が静けさと安心感をもたらす
子ども室ではベッドと収納を兼ねたオリジナルの家具をデザインし、スペースを有効活用。空いたスペースも、要望に応えて勉強机やアップライトのピアノが置けるように計画。ミニマムながら必要なものがしっかり揃う子ども室を実現
洗面室もオリジナルをデザイン。こちらも木材×ダークグレーで仕上げ、邸内全体の統一感を演出








