今日は「お気に入りの場所」で何をする?
家族がゆるやかにつながる楽しい家

約26坪の計画地で「5人家族が絶妙な距離感で、ゆるやかにつながる家」という要望に応えたユウ建築設計室の吉田祐介さん。「広さに制約があってもこんな手があるのか……!」と膝を打ちたくなるプランと、独特のかわいさを備えたデザインは必見だ。

この建築家に
相談する・
わせる
(無料です)

広さの制約を乗り越えた
家族が「一緒に」「思い思いに」過ごせる家

ユウ建築設計室の吉田祐介さんが設計する住宅はシンプルで控えめなのに、刺さる人には刺さる独特のかわいさを感じさせるものが多い。千葉県内の住宅地に佇む「あわいの家」はまさにそのタイプで、ファサードを端的に表現すると切妻の2階建て。だが、足元(1階)がきゅっと締まっていて、少し頭でっかちにも見えるところがなんともキュート。2階の大きな窓の周辺をへこませたデザインも、ありきたりではないユニークな表情で愛らしい。

もちろん、魅力はファサードだけではない。

この家に住む施主のMさん一家は元気な3人のお子さんがいるファミリーで、自邸に望んでいたのは「家族がゆるやかにつながるような、距離感・一体感のバランスが取れた住まい」。

そう聞いて思い浮かぶのは、居場所がたくさんあるけれど完全に仕切られておらず、互いの気配を感じる程度にさりげなくゾーニングされた住宅だ。となると邸内にはいろいろな居場所をつくりたいし、男女3人のお子さんのために人数分の子ども部屋も欲しい。それに、家族でキャンプに行くのが好きだから、大型の自家用車を置く駐車スペースも確保したい……。

5人家族が快適に暮らし、これらの要望も反映する住まいを実現するにはそれなりのスペースが必要に思える。しかし、計画地は約26坪で決して広いとはいえないサイズ。吉田さんはこの条件下でどのように空間を有効活用し、ゆるやかにつながる居場所を生み出したのだろうか?
  • 品の良いベージュの外壁×少し頭でっかちでキュートなフォルム。「上品」と「かわいい」のバランスが絶妙

    品の良いベージュの外壁×少し頭でっかちでキュートなフォルム。「上品」と「かわいい」のバランスが絶妙

  • 広い玄関土間。キャンプ用品などをしまえる大容量収納もある。その上は踊り場を生かしたスタディーコーナー

    広い玄関土間。キャンプ用品などをしまえる大容量収納もある。その上は踊り場を生かしたスタディーコーナー

キーワードは「目線の高さ」
設計の力で、踊り場も階段も楽しい居場所に

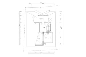
この家の1階は欲しい要素の1つだった駐車スペースを取っているので、その分、2階よりも床面積が減っている。吉田さんはそのコンパクトな1階に主寝室や子ども部屋を集め、2階に家族みんなのLDK、その上に屋上へ出る塔屋や小屋裏収納を設けるプランを提案。こう書くと強烈なオリジナリティを感じないかもしれないが、実際に「あわいの家」を訪れたら、その想像はいい意味でダイナミックに裏切られる。

まず玄関を入ると、正面の上方に見える小さなテラスのような場所でお子さんがデスクに向かって何か(宿題?お絵描き?)に夢中になっている。意外なスペースの登場に好奇心をかき立てられてよく見ると、どうやらそこは階段の踊り場。階段がオープンなので玄関土間から踊り場も見えるのだが、吉田さんはその踊り場を有効活用し、出窓から自然光が入る明るい空間にランクアップ。出窓の奥行きを使ってカウンターデスクも造作し、子ども3人が外を見ながら勉強できるスタディーコーナーをつくったのだ。

この階段をのぼりきるとメイン空間のLDKが登場するが、LDKも面白い。大きなワンルームの北側半分がキッチンとダイニング、残りの南半分がリビングで、リビングは「高天井のソファスペース」と「大窓のある小上がりスペース」の2部構成。

小上がりがあるだけでも居心地が変わって楽しいのに、小上がりの一角には塔屋階への階段を生かした造作ベンチが設けられ、座って絵本を眺める男の子たちの姿が。ベンチからは窓越しの景色が見えて気持ちがいいし、踊り場で絵を描くお姉ちゃんとの距離もほど近く、時折コミュニケーションも生まれている。

さらに、塔屋階への階段沿いには本棚もつくられていて、階段は本を手に取るときに座り込む椅子としても大活躍。一方、大人は子どもの様子をそれとなく見守りながらソファで雑誌をめくったり、ダイニングのテーブルでお茶を飲んだりと、こちらも好きな時間を満喫中。

「それぞれの居場所は、目線の高さと、目線の向きが違うことがポイントです。特に目線の高さの違いは丁寧にプランニングしていて、各スポットの独立性と、ほどよい距離感を生み出しています」と吉田さん。

いわれてみれば踊り場、ダイニング、ソファスペース、小上がり、ベンチ、階段などバリエーション豊かな居場所はいずれも大きな1室空間の中にあるのに目線の高さが違っていて、その違いが「つかず離れず」を実現していることに気づく。

そしてもう1つ、平面的な広さが限られていても、空間をタテに捉えることで立体的な豊かさを可能にし、多くの居場所をつくり出している点もこのプランのすごさである。大人もワクワクするような「あわいの家」の楽しさは、敷地面積にとらわれることなく空間を創造する、吉田さんのクリエイティビティの賜物なのだ。
  • 踊り場が垣間見え、この先にどんな空間が広がるかワクワクする。階段脇にあるのは帰宅後などに使える手洗い

    踊り場が垣間見え、この先にどんな空間が広がるかワクワクする。階段脇にあるのは帰宅後などに使える手洗い

  • 踊り場のスタディーコーナー、本棚、塔屋階への階段がゆるやかに交錯。誰もがワクワクする楽しい空間構成だ

    踊り場のスタディーコーナー、本棚、塔屋階への階段がゆるやかに交錯。誰もがワクワクする楽しい空間構成だ

  • 2階LDK。北側(写真右)がキッチン・ダイニング、南側(写真左)がリビングで、下がり壁や丸柱でそれとなくゾーニングされている。壁は空間ごとにアクセントカラーをプラス。ダイニングはグリーンだがとても淡い色調で、ナチュラルな雰囲気を損なわずに明るさ・楽しさを演出

    2階LDK。北側(写真右)がキッチン・ダイニング、南側(写真左)がリビングで、下がり壁や丸柱でそれとなくゾーニングされている。壁は空間ごとにアクセントカラーをプラス。ダイニングはグリーンだがとても淡い色調で、ナチュラルな雰囲気を損なわずに明るさ・楽しさを演出

  • ダイニングからリビングを見る。リビングにはソファスペースと小上がりがあり、小上がりでは子どもが床座でおもちゃ遊びなどを楽しめる。一方のソファスペースは大人が落ち着ける雰囲気。写真正面の壁には、プロジェクターで映画などを映すこともできる

    ダイニングからリビングを見る。リビングにはソファスペースと小上がりがあり、小上がりでは子どもが床座でおもちゃ遊びなどを楽しめる。一方のソファスペースは大人が落ち着ける雰囲気。写真正面の壁には、プロジェクターで映画などを映すこともできる

  • 小上がりの一角には塔屋階への階段があり(写真左奥)、その一段を延ばしたベンチも居場所の1つ(写真中央)。踊り場、リビング、小上がり、そして塔屋階への階段と、空間の縦軸を上手に使ってさまざまな居場所を創出し、ほどよい距離感でゆるやかにつなげている

    小上がりの一角には塔屋階への階段があり(写真左奥)、その一段を延ばしたベンチも居場所の1つ(写真中央)。踊り場、リビング、小上がり、そして塔屋階への階段と、空間の縦軸を上手に使ってさまざまな居場所を創出し、ほどよい距離感でゆるやかにつなげている

色使いとデザインに技あり
明るくナチュラルな内装で居心地抜群

多彩な居場所の魅力を高めている、内装の仕上げについてもお伝えしたい。

「あわいの家」ではMさんの希望を踏まえ、アッシュの幅広フローリング、ベージュの塗り壁といった優しい色調をベースに内装をデザイン。壁は空間ごとに異なるアクセントカラーを入れているのが特徴で、パステル調のピンクや緑、ブルーがポップなテイストをプラス。また、壁の開口部分はカドをアールにして丸みをつけ、柱もきれいな丸柱に整えている。

淡いパステルカラーや曲線を取り入れた明るく優しげな印象の内装は、育ち盛りのお子さんがいるファミリーにぴったり。かといって子どもっぽいわけではなく、Mさんが選んだ北欧のすてきな照明器具や家具とも好相性。かわいさ×ナチュラルな品の良さの絶妙なバランスは、「つかず離れず」という今回の設計テーマと通じるものがあり、大人も子どもも大満足のセンスあふれる空間となっている。
  • ソファスペースから小上がりを見る。青空を望むトップサイドライトから明るい光が降りそそぐ

    ソファスペースから小上がりを見る。青空を望むトップサイドライトから明るい光が降りそそぐ

  • ダイニングではお茶を飲みながら団らん、小上がりのベンチではお子さん同士で絵本遊びと、家族がつかず離れずの距離感で思い思いの時間を楽しめる。目線の高さ・向きを熟考して独立感がある多彩な居場所をつくり出し、それらをゆるやかにつなげた設計で理想の暮らしを実現

    ダイニングではお茶を飲みながら団らん、小上がりのベンチではお子さん同士で絵本遊びと、家族がつかず離れずの距離感で思い思いの時間を楽しめる。目線の高さ・向きを熟考して独立感がある多彩な居場所をつくり出し、それらをゆるやかにつなげた設計で理想の暮らしを実現

吉田さんとの家づくりを終えて……
<Mさんからのメッセージ>

最後に、新居で暮らし始めたMさんが吉田さんに寄せてくださったというメッセージをご紹介したい。



メッセージの中で、Mさんがまず言及しているのは最初に提案を受けたときのワクワク感だ。

「お伝えしたのは、“居場所がたくさんあり、それらがゆるやかにつながって、家のどこにいても気配が感じられる”という曖昧なイメージでした。けれど、いただいた提案はまさにその思いを形にしたもので、建築家の方と家づくりをする魅力や楽しさを感じたことを覚えています」

以降も、抽象的な要望に対し毎回意図を汲み取って提案してくれた上、工程終盤で五月雨に追加の要望を伝えたときも「嫌な顔ひとつせず、丁寧に、しかも複数の選択肢を示しながら提案してくださり、心から感謝しています」とMさん。構造の強度やデザインの納まりなどにも鑑み、専門家の視点でアドバイスをもらえるので、思いついたことを安心して相談できたと振り返る。

おかげで住み始めてからも全く後悔のない大満足の家づくりになったそうで、「今後のメンテナンスや将来のリフォームも、ぜひ吉田さんにお願いしたいと思っています。末永くお付き合いを続けられたら嬉しいです」と、絶大な信頼の言葉で結んでくれた。



「あわいの家」という作品名は、「家族の気配が柔らかく行き交う“あわい”をかたちにした」との意味を込め、Mさんと吉田さんで相談して決めたという。この「あわいの家」を通じ、Mさんと吉田さんもほどよい距離感で、ゆるやかに、末永く、温かな絆を紡いでいくのだろう。



撮影:アトリエあふろ 糠澤武敏
  • 階段沿いに本棚を造作。ブックカフェのような空間デザインで、本そのものがインテリアを彩るアイテムに

    階段沿いに本棚を造作。ブックカフェのような空間デザインで、本そのものがインテリアを彩るアイテムに

  • 小上がりのベンチにいるとき、ふと振り返れば階下のスタディーコーナーにいる家族の姿が目に入る

    小上がりのベンチにいるとき、ふと振り返れば階下のスタディーコーナーにいる家族の姿が目に入る

間取り図

  • 1F平面図

  • 2F平面図

  • 塔屋階平面図

基本データ

作品名
あわいの家
施主
M邸
所在地
千葉県
家族構成
夫婦+子ども3人
敷地面積
84.93㎡
延床面積
100.5㎡